Prajay Chit Fund Office

Project Details

Project Name
Prajay Chit Fund Office
Location
Prajay Chit Fund, 4-1-2/5, Eden gradensRamkotiHyderabadTelanganaINDIA500001
Architect
Design Experiment
Project Types
Shared By
Design Experiment
Project Status
Built
Year Completed
2017
Team
Senior Architect: Sarojini Dantapalli
Senior Architect: Abhitej Velore
Architect: Maniteja Gandhe

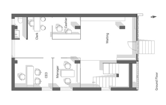
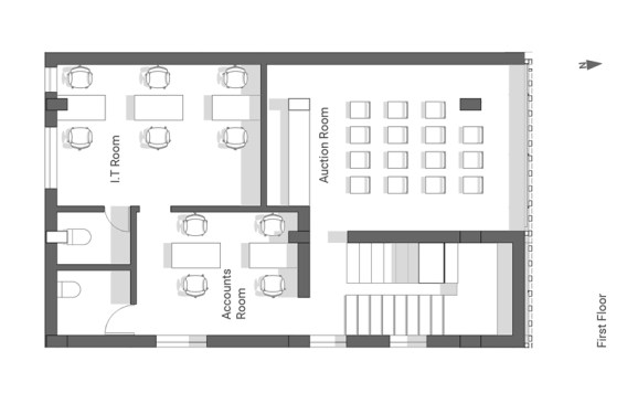
Project Description

“Intention and identity were the two challenges presented to Design Experiment when asked to renovate an old building for a chit funds office. The intention of the company was clear, to instill confidence in the chit funds offices’ potential customers. The chit funds industry has been fraught with scandals, from owners shutting shop abruptly, to refusing to pay up to its customers, so the architects came up with a novel way to propagate trust among its patrons.”

Upcoming Events

  • Slate Reimagined: The Surprising Advantages of Slate Rainscreen Cladding

    Webinar

    Register Now
  • The State of Residential Design Today: Innovations and Insights from RADA-Winning Architects

    Webinar

    Register for Free
  • Specifying Smarter with Copper-Clad Aluminum (CCA) Metal-Clad Cable

    Webinar

    Register for Free
All Events