Potato Head Hong Kong

Project Details

Project Name
Potato Head Hong Kong
Location
100 Third StSai Ying PunHong Kong
Project Types
Project Scope
Interiors
Shared By
dmadsen
Project Status
Built
Size
8,000 ft²
Team
Chief designer: Sou Fujimoto
Project leader: Jane Luk
Junior architect: Joanne Chen
Room or Space
Dining Room

Project Description

Text by Deane Madsen

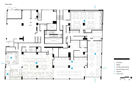
Jakarta, Indonesia–based lifestyle brand Potato Head enlisted Japanese firm Sou Fujimoto Architects to design a new 8,000-square-foot multipurpose space in Hong Kong. Working with the company’s in-house design team, Fujimoto broke the plan into discrete areas—including a café, shop, bar, restaurant, music room, and vinyl record library—that combine to form a varied interior. “In this project, we wanted to create space that has no clear definition of boundary,” Fujimoto says. To that end, a latticework of shelves in the retail area uses the same bracketing technique Fujimoto employed in his 2013 Serpentine Gallery Pavilion in London, defining space while remaining visually permeable.

Inside the first of two dining rooms for Potato Head’s Kaum restaurant, teak tables and hand-painted timber panels that line the ceiling nod to the Indonesian menu. Along the storefront that lines the north edge of the dining room, vernacular security grates are reimagined as geometric patterns of white steel embedded into the glazing. “We looked at the city and lives of people in Hong Kong,” Fujimoto says. “We took the patterns of the urban fabric, the small and compact scale of the city, and reinterpreted those elements into our design.”

The second Kaum dining room provides a warm and intimate contrast to the daylit spaces along the building periphery. The walls and ceiling of the space are lined with more than 700 of the timber panels, which were hand-carved and -painted by the Toraja, an Indonesian indigenous group, with an eye toward passing the traditional craft to future generations. They were commissioned for Potato Head Hong Kong to showcase the company’s Indonesian roots.

In the all-day café, mirrored planter boxes hang from the ceiling above groupings of midcentury modern furniture. “The [stacked] shelves and furniture define the boundary of the space,” Fujimoto says, “but they are also the space itself.” The assemblage references a theme Fujimoto revisits often in his work: “Architecture rests not only in designing objects and spaces, but rather in designing environments that consist of the entirety of our surroundings. We have to go back to a point of thinking of nature and architecture as equal.”

Project Credits
Project: Potato Head Hong Kong, Hong Kong
Client: PTT Family
Design Architect: Sou Fujimoto Architects, Tokyo . Sou Fujimoto (chief designer), Jane Luk (project leader), Joanne Chen (junior architect)
Builder: Together Contracting Co.
Lighting Consultant: Switch
Acoustic Consultant: MKSA
Audiovisuals: LSI Services
Size: 8,000 square feet
Cost: Withheld

Upcoming Events

  • Design Smarter: Leveraging GIS, BIM, and Open Data for Better Site Selection & Collaboration

    Live Webinar

    Register for Free
  • Slate Reimagined: The Surprising Advantages of Slate Rainscreen Cladding

    Webinar

    Register Now
  • The State of Residential Design Today: Innovations and Insights from RADA-Winning Architects

    Webinar

    Register for Free
All Events