Possession Sound Remodel

Project Details

Project Name
Possession Sound Remodel
Location
EverettWAUSA
Project Types
Single Family
Project Scope
Renovation/Remodel
Shared By
Dan Nelson
Project Status
Built
Year Completed
2014
Style
Modern
Size
3,280 ft²
Team
Principal Architect: Dan Nelson, AIA
Project Architect: Tom Rochon

Project Description

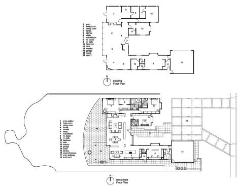
The Possession Sound House was an existing residence located on a high bluff property in Snohomish County with spectacular views of the sound and Whidbey Island. The house was built in 1968 as a one-story, 3,280 square foot ranch style home with an attached two car garage in a long established neighborhood with a mix of architectural styles.

The client, a young professional, wanted to completely update the exterior and interior of his home with a new contemporary edge. He also wanted spaces that reflected his informal life style. He wanted to remove interior walls to open up the living, kitchen, dining spaces and raise the ceiling heights wherever possible.

The new design echoes the ranch style house of the 60’s with its trend towards sleekness and the idea of extending the interior spaces to the outdoors with an updated interpretation.

The architect kept some key elements of the original ranch style home, including the single story long-low hipped roof line and u-shaped layout, yet enhanced the flow of the home by opening up the floor plan, and added sliding glass doors that open up to the west with views facing Possession Sound. The existing horizontal cedar siding was removed and replaced with exterior stucco. The existing windows were replaced with bronzed aluminum clad wood windows. Coved lighting helps to delineate areas within the open plan and add visual interest at night.

There were two additions to the original house both being on the west side of the house. The first is the 250 square foot covered terrace adjacent to the family room and kitchen. This area was added for entertaining and barbequing during our northwest inclement weather. The second addition adds 140 square feet to the existing master bedroom, increasing the size of the master closet and bathroom functions.

The original bay windows off the guest bedroom and study were straightened out to reinforce the clean lines used throughout the house and one additional bay window was added to the other guest bedroom so each would have equal built-ins and amenities.

Additional skylights were added to the family room, kitchen, hallway and master dressing area to bring in more natural light. This also extends the visual height to the already low ceilings.

Extensive built-in cabinetry in the entry, living room, family room and study was kept at 48” in height to create division between spaces yet allows visual connections.

New landscaping, driveway, entry, backyard terrace, hardscaping and gas fire bowl were also key elements used in the remodel to the exterior into the interior.

Upcoming Events

  • Build-to-Rent Conference

    JW Marriott Phoenix Desert Ridge

    Register Now
  • Reimagining Sense of Place: Materiality, Spatial Form, and Connections to Nature

    Webinar

    Register for Free
  • Homes that Last: How Architects Are Designing a Resilient Future

    Webinar

    Register Now
All Events