Portland State University School of Business Renovation & Expansion

Project Details

Project Name
Portland State University School of Business Renovation & Expansion
Location
Portland Oregon
Project Types
Education
Shared By
sashaboglu
Project Status
On the Boards/In Progress
Size
135,625 ft²

Project Description

FROM THE ARCHITECTS:

Located
in close proximity to downtown Portland, the new School of Business
Administration is uniquely positioned to integrate with the city’s rich network
of public open space and its diverse urban uses. The architectural brief
called for a renovation to the existing 100,000 square feet, 1970s building and for the
seamless integration of an additional 35,000 square feet.

Rejecting the singular building construction that dominates the 200′ x 200′
city blocks, the proposed design appears as two distinct buildings sharing a
city block.  This approach enhances the
public realm by providing a more diverse streetscape and by reinvigorating existing
links and creating new arteries between the urban center and its related
pedestrian, transportation and park. The result creates many
pedestrian-friendly and transparent opportunities for future development along
6th Avenue, Broadway and Montgomery Street.

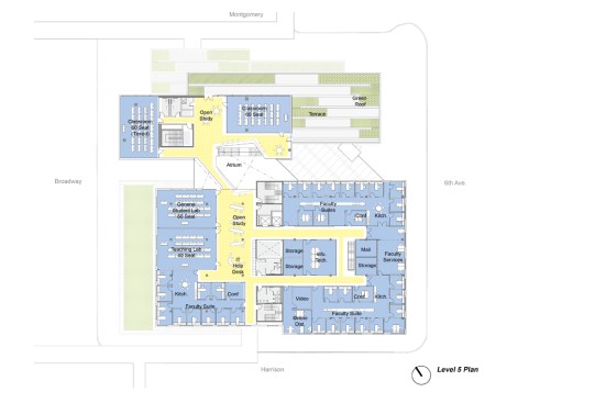
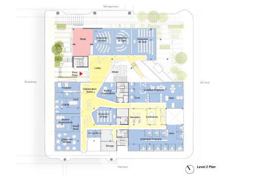
Benefiting
from a diverse program, the New School of Business Administration building is
centered around a five-story atrium that is animated with activities. By
arranging a variety of spaces—informal meeting and study areas, gardens,
classrooms, business incubators, student spaces, faculty and administrative
offices and retail—to maximize communication and connectivity, the space goes
beyond a transitional corridor and creates community for the School, the
University and the neighborhood.

A
one-story grade differential between 6th Avenue and Broadway creates two ground
levels, further heightening the activity within and around the building. These
ground levels are populated with public oriented spaces to enhance what will
become the central, interior gathering space for the University and the
neighborhood’s civic events. This new social hub is expected to achieve LEED
Gold status; continuing Portland State University’s reputation as an
institution dedicated to social, economic, and environmental sustainability
while creating a welcome and inviting space within the campus fabric.

Upcoming Events

  • Design Smarter: Leveraging GIS, BIM, and Open Data for Better Site Selection & Collaboration

    Live Webinar

    Register for Free
  • Slate Reimagined: The Surprising Advantages of Slate Rainscreen Cladding

    Webinar

    Register Now
  • The State of Residential Design Today: Innovations and Insights from RADA-Winning Architects

    Webinar

    Register for Free
All Events