Pole House

Project Details

Project Name
Pole House
Architect
Allan Coppinger
Project Types
Single Family
Project Scope
New Construction
Shared By
Symone
Project Status
Built
Year Completed
2016
Size
1,000 ft²

Project Description

FROM THE ARCHITECT:

The Pole House is a year round cottage designed for a couple and their son on a heavily wooded site in the Manitoba Interlake, two and a half hours North of Winnipeg. The cottage lot, obtained through the provincial cottage lot lottery system, has Lake Winnipeg frontage, although a provincial easement limits the cottage’s proximity to the water.

The site’s geology is limestone bedrock covered by a shallow layer of overburden. The low profile of this landscape combined with the porous nature of the overburden results in an extremely high water table on the site. This condition necessitated a unique, dock-like crib structure to accommodate high water and freeze-thaw heave. The foundation is a steel pole (recycled gas pipe) grid that extends below the ground surface, and is drilled into the subterranean bedrock.

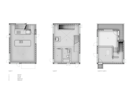
To suit its dense forest context, Pole House is designed as a vertical wood platform structure that floats above the ground on thin steel pipe columns. The resulting tower typology enables views to the lake through the forest. Three economical floor plates are stacked, progressing from most public to most private. A stair winds around each floor plate contained within a simple rectangular form.

The cottage interior is primarily left exposed, revealing its wood frame, studs and plywood sheathing. Materials and services are matter of fact and raw in their presentation and use.

A singular rigid foam insulation jacket strives for thermal efficiency, and internal ducting allows for air to be controlled and distributed vertically. A cast iron wood stove in the middle of the cottage is the primary heating source. Interior spaces are informal, meant for both hanging out and hiding away.

Upcoming Events

  • Design Smarter: Leveraging GIS, BIM, and Open Data for Better Site Selection & Collaboration

    Live Webinar

    Register for Free
  • Slate Reimagined: The Surprising Advantages of Slate Rainscreen Cladding

    Webinar

    Register Now
  • The State of Residential Design Today: Innovations and Insights from RADA-Winning Architects

    Webinar

    Register for Free
All Events