Polarise Villa

Project Details

Project Name
Polarise Villa
Location
Mosha, Damavand, TehranMosha, DamavandIRAN
Project Types
Single Family
Project Scope
New Construction
Shared By
kalbod design
Project Status
On the Boards/In Progress
Year Completed
2023
Style
Modern
Team
principal architect: mohamad rahimizadeh
architect: Mohamad ramezankhani- shaghayegh nemati- atefe ramezankhani
visualization: sara rajabi- shaghayegh nemati

Project Description

We were facing a land with an area of 1400 square meters with a very steep slope
located in the Mosha area of Damavand city. The slope difference in some parts
reached 25 meters. The entrance to the land is from the southern part of the land
and the building is constructed in the northern part. Our biggest challenge is to
resolve this height difference so that the employer can drive to the parking lot of
the project.
On the other hand, the proper view of the building on the floors prevented us from
reducing the height. The project is located in a mountainous area and most of the
time the temperature tends to be cold, so the east, west and north walls of the
project are designed with maximum rigidity to help retain heat inside and protect
the south light of the entrance.
The concept of the project is to use curved and moving lines due to its proximity
to the Abali ski slope. The interference of these rotating lines shows the movement
of professional skiers in the snow in different directions. One-shape and one-color
materials of the project have also been necessary for the environmental
adaptability of the project.
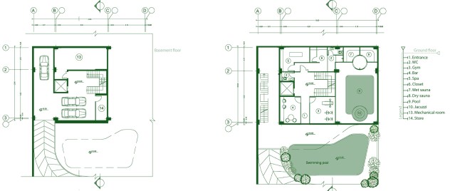
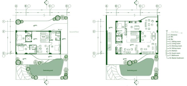
This project consists of 4 levels (3 levels on the ground and 1 level underground)
According to customer’s request, on the ground floor, there is a Gym, swimming
pool, wet and dry sauna, spa and Jacuzzi.
The first floor includes guest room , living room, sitting room and dining room
The third floor consists of 3 master rooms and a sitting room.
Parking is located in the basement

Upcoming Events

  • Design Smarter: Leveraging GIS, BIM, and Open Data for Better Site Selection & Collaboration

    Live Webinar

    Register for Free
  • Slate Reimagined: The Surprising Advantages of Slate Rainscreen Cladding

    Webinar

    Register Now
  • The State of Residential Design Today: Innovations and Insights from RADA-Winning Architects

    Webinar

    Register for Free
All Events