Poetry Foundation

Project Details

Project Name
Poetry Foundation
Project Types
Community
Project Scope
New Construction
Shared By
Xululabs
Project Status
Built

Project Description

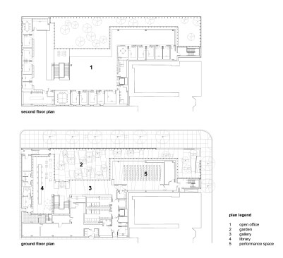
The project is comprised of a building in dialogue with a garden which is created through erosion of an implied volume as described by the L-shaped property boundary.The interlocking garden space is conceived as another “room” of the building, part of the building’s slowly-unfolding spatial sequence revealed space by space, not unlike a poem which is revealed line by line.

Visitors enter the project through the garden, an urban sanctuary that mediates between the street and enclosed building. Upon entering the garden, visitors perceive the double-height library space, announcing that they are entering into a literary environment.Inside the building on the ground floor, a public exhibition gallery connects the library to a performance space, where poets read their work against the backdrop of the garden. On the second level, office space is configured to allow views into the garden from above.

Tectonically, the building is conceived of as a series of material layers (zinc, glass, and wood) that visitors move through and between to experience the building. The building’s outer layer of oxidized zinc becomes perforated where it borders the garden, allowing visual access to the garden from the street to encourage public investigation and invite participation.

Upcoming Events

  • Design Smarter: Leveraging GIS, BIM, and Open Data for Better Site Selection & Collaboration

    Live Webinar

    Register for Free
  • Slate Reimagined: The Surprising Advantages of Slate Rainscreen Cladding

    Webinar

    Register Now
  • The State of Residential Design Today: Innovations and Insights from RADA-Winning Architects

    Webinar

    Register for Free
All Events