plus energy rooftop

Project Details

Project Name
plus energy rooftop
Location
ViennaAUSTRIA1220
Project Types
Single Family
Project Scope
Addition/Expansion
Shared By
HOLODECK architects
Project Status
Built
Year Completed
2016

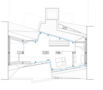
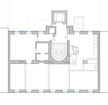
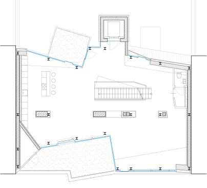
Project Description

The two-storey loft conversion on Schüttauplatz takes references from the landscape and creates by projections (dormers) and recesses views from the indoor and outdoor use and protected high-quality open spaces. The transition between apartment house and construction is accentuated road side by an architectural design element which protrudes above the last inventory levels in the road space. The lightweight steel sets itself as an independent member on the existing building.

Upcoming Events

  • Design Smarter: Leveraging GIS, BIM, and Open Data for Better Site Selection & Collaboration

    Live Webinar

    Register for Free
  • Slate Reimagined: The Surprising Advantages of Slate Rainscreen Cladding

    Webinar

    Register Now
  • The State of Residential Design Today: Innovations and Insights from RADA-Winning Architects

    Webinar

    Register for Free
All Events