Plum Island House

Project Details

Project Name
Plum Island House
Location
NewburyportMA
Architect
CO-G
Project Types
Single Family
Project Scope
New Construction
Shared By
Madeleine D’Angelo
Project Status
On the Boards/In Progress

Project Description

FROM THE ARCHITECTS:

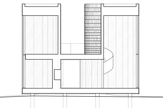
Plum Island House creates space through three curvilinear volumes – each ambiguously act as both object and wall as they transition from floor to floor. The shingle facade is designed to wrap the lower floor and peel back to follow the volumetric curvature at the upper.

Project Credits:
Project: Plum Island House
Architects: CO-G.

Upcoming Events

  • Design Smarter: Leveraging GIS, BIM, and Open Data for Better Site Selection & Collaboration

    Live Webinar

    Register for Free
  • Slate Reimagined: The Surprising Advantages of Slate Rainscreen Cladding

    Webinar

    Register Now
  • The State of Residential Design Today: Innovations and Insights from RADA-Winning Architects

    Webinar

    Register for Free
All Events