Plain House

Project Details

Project Name
Plain House
Location
China
Architect
Wutopia Lab
Project Types
Project Scope
New Construction
Shared By
Ashleigh Popera
Project Status
Built
Year Completed
2017
Size
2,691 ft²
Team

Project Description

FROM THE ARCHITECTS:

Yu Ting, the Principal Architect at Wutopia Lab, explains: "I insist on the establishment of a dual relationship in the design, me and the artist, Isozaki and me, my old project and new one, the surrounding buildings and artist's house, artists’ paintings and residence, all these information leads to Plain house."

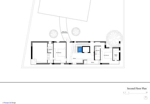
Artist Li Bin has two studios. The first and the second studios, respectively, are designed by Isozaki and Wutopia Lab. Li wanted the renovation to shift the living functions from the first studio to the second studio. The first studio has now been repurposed as his own museum, while the second studio has been converted into his house, a painter's house. A bridge connects these two spaces.

In addition to a garage, tea room, and living room which contains the kitchen and the dining room, the first floor includes two storage spaces for his works. On the second floor there are “his” and “hers” bedrooms, a study which can be used as a servant’s quarter, and a work balcony. The bridge connecting the first studio to the second studio begins at a mutual space between the two second floor bedrooms.

The inner walls were painted gray, an ideal backdrop color for Li’s paintings. In contrast to the thus far monochromatic use of color, we used Li’s trademark color, red, to paint the living room. A singular skylight was positioned in the southwest corner of the living room ceiling. The radiance of the red changes with the weather and the time of day, at the climax of the interplay between these two elements, color and light, the living room takes on an ineffable atmosphere. It is the “sacred” space in the building’s parti. These windows make Plain house into a sky lit house; the different sized openings allow light to waterfall into the interior.

Plain House’s façade is a lighter gray. Before the exterior paint fully dried, we use a wooden mold to print leaf patterns onto the façade, making the gray exterior shimmer in the sunlight. We used fluorite to dry the stone design of the skirt of the wall, hoping it may shine like a star in the night sky above. There are two types of windows on the façade, the old windows and the old ones. Square windows were from old buildings, which the artist wants to apply on Plain house. Given to the fact, size and color of these windows are different. All the positions are designed according to the design’s needs. These new and old windows decorate the roof and the facade of Plain house.

As a result of the cost, we did not use weathering steel, when the steel plate is eroded presenting a beautiful golden yellow, then we brushed anti-rust paint, it become a deep brown.

There is a large camphor tree in the courtyard, so the north side of the house is bounded by the tree’s trunk and roots. The tree’s canopy inevitably presses up against the house. Out of respect for the tree, the wall here is sloped inwards. In order to highlight the tree’s texture, we changed the material of this part of the façade into steel. The steel will mature with the natural environment.

The artist, Li Bin was involved in the construction process. At the heart of the building there is a small sky lit space, “the” space. The artist painted the walls a sky blue. The boundaries of the blue walls blur with the sky above. As a result, the light from the blue sky resonates with the blue walls giving the space an ethereal glow. One forgets this space exists between the staircase and the elevator.

The façade of the south side holds a seal of the artist's own design. The seal’s perforated iron plating allows for lighting in addition to privacy and security. This seal defines the south side of the house.

As time has passed, the artist's house has grown to become simple and plain.

Upcoming Events

  • Build-to-Rent Conference

    JW Marriott Phoenix Desert Ridge

    Register Now
  • Reimagining Sense of Place: Materiality, Spatial Form, and Connections to Nature

    Webinar

    Register for Free
  • Homes that Last: How Architects Are Designing a Resilient Future

    Webinar

    Register Now
All Events