Piaggio House

Project Details

Project Name
Piaggio House
Location
RosarioArgentina
Architect
Spinagu
Project Types
Single Family
Project Scope
New Construction
Shared By
Madeleine D’Angelo
Project Status
Built
Year Completed
2019

Project Description

FROM THE ARCHITECTS:

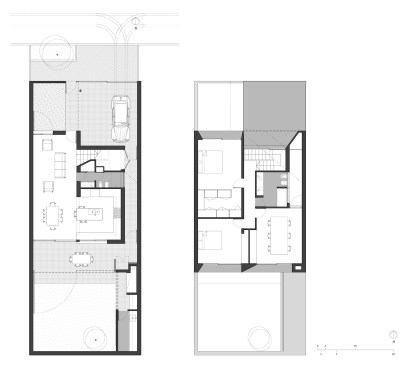
Piaggio House is a two-story, single family, small lot house in the outskirts of the city of Rosario. Adjacent to the Parana Riverfront, this middle-class residential neighborhood is characterized by a tightly subdivided urban grid with narrow plots. Like many buildings in Rosario, the house shares its party walls with its neighbors.

The Argentine courtyard residence was designed for an extremely private couple who nonetheless love indoor-outdoor living. The design accentuates the layering of private and semi-private spaces through its recessed volumes, spaces, and windows, and the strategic delamination of security gates from glass walls. This allows the veranda on the ground floor to serve as a flexible space that transforms from a private enclosed patio to a semi-open sun deck with a floating gate.

The house neighbors a 1920s street-facing one-story house to the west and a recessed two-story cottage to the east. Its chamfered corner acknowledges this neighborhood context of pitched- roof cottages — the dog-eared profile of the roof calls out the house (like the favorite page of a well-worn book) while connecting seamlessly with the neighboring houses.

The house accommodates the everyday rhythms of Argentinian family life, featuring three-bedrooms; two baths; a large kitchen integrated with dining and living rooms into a loft-like space; a sun deck; and the requisite asador (a built-in outdoor grill station). The one-hundred-year-old lemon tree is left intact in the garden, framed by a swath of green grass.

Project Credits:
Project: Piaggio House
Architects: Spinagu. Rishab Jain, Nancy Ai, Vincent Yung, Ryan Farnam (team)

Upcoming Events

  • Design Smarter: Leveraging GIS, BIM, and Open Data for Better Site Selection & Collaboration

    Live Webinar

    Register for Free
  • Slate Reimagined: The Surprising Advantages of Slate Rainscreen Cladding

    Webinar

    Register Now
  • The State of Residential Design Today: Innovations and Insights from RADA-Winning Architects

    Webinar

    Register for Free
All Events