Performative Dwelling (ADU)

Project Details

Project Name
Performative Dwelling (ADU)
Architect
FAM 50
Project Types
Single Family
Shared By
Aryaman
Project Status
Concept Proposal
Style
Modern
Size
790 ft²
Team
Baruah: Aryaman

Project Description

Diverse housing, affordable housing, and workforce housing are among Portland’s most pressing needs. Recent changes in the city’s Re-Code initiative have expanded the potential for Accessory Dwelling Units (ADUs) to help meet those needs.
The Portland Society for Architecture (PSA) put forth the idea to visualize and test the limits of Portland’s new ADU policy by designing an ADU that addresses one or multiple of the new codes.

Scenario Chosen :

Scenario 1 – 13 Howard Street (R-6)
Two-family structure in the high-density neighbourhood. (Backyard ADU)
•Principle Structure Setbacks – Front 5’/ Side 5‘/ Rear 10’
•Max Lot Coverage – 60%
•Max Height – 45’

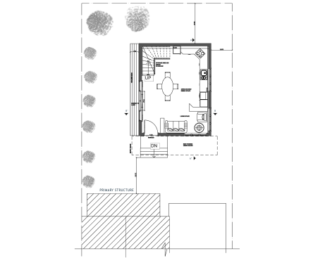
The ADU has been divided into two floors based on the time a room will supposedly be used :

1. The ground floor being, the living, dining and cooking area; will be spent less time in. It’s a public space for interaction with guests, thus there is no wall segregating these spaces.

2. The first floor however is a more private space. With a bedroom, bathroom, storage and working space, the floor demands segregation. And this segregation remains free to be altered as per user/’s needs, thus maybe making the bedroom wider, open storage, etc. This alteration would still make the floor a private one.

Upcoming Events

  • Reimagining Sense of Place: Materiality, Spatial Form, and Connections to Nature

    Webinar

    Register for Free
  • Homes that Last: How Architects Are Designing a Resilient Future

    Webinar

    Register Now
All Events