Paty Modern

Project Details

Project Name
Paty Modern
Location
DecaturGA
Architect
LIGHTROOM LLC
Project Types
Single Family
Project Status
Built
Year Completed
2014
Size
4,500 ft²

Project Description

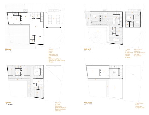
The Olympic Place Courtyard House uses an L-shaped typology to create structure while integrating elements of its cultural context, program, and site. The L-shape geometry of the house responds to both existing site conditions and city zoning setbacks to optimize on natural daylighting. A three-story space at the heart of the home punctuates the interesting courtyard facing circulation. This volume is grounded by the kitchen as a gathering space and spatial organizing device. The atrium becomes a natural cooling device with operable window above. The fireplace is another anchoring element rising from the concrete stereotomic foundation all the way to the cantilevered roof opening. The front porch is a modern reinterpretation of southern vernacular housing. Public Functions are placed at courtyard level while private functions hover above to provide shading and enclosure. Native Georgia materials such as cypress, marble, and granite create a natural palette. In addition to the passive sustainable design strategies, a geothermal heating and cooling system, and solar array on the roof minimize energy use and aims at off the grid living.

Upcoming Events

  • Design Smarter: Leveraging GIS, BIM, and Open Data for Better Site Selection & Collaboration

    Live Webinar

    Register for Free
  • Slate Reimagined: The Surprising Advantages of Slate Rainscreen Cladding

    Webinar

    Register Now
  • The State of Residential Design Today: Innovations and Insights from RADA-Winning Architects

    Webinar

    Register for Free
All Events