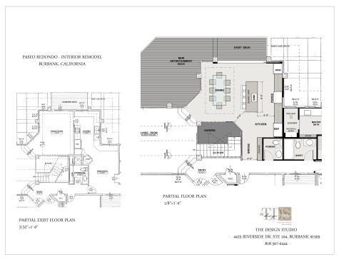
Paseo Redondo Kitchen

Project Details

Project Name
Paseo Redondo Kitchen
Location
BurbankCA
Project Types
Single Family
Project Status
Built
Year Completed
2016
Size
2,886 ft²

Project Description

Interior Residential Remodel of a home located in the Burbank Hills of Los Angeles. The design intent was to open up the 60’s built traditional residence to the beautiful views of Los Angeles, transforming it into the entertainment home the new owners always desired.

Upcoming Events

  • Design Smarter: Leveraging GIS, BIM, and Open Data for Better Site Selection & Collaboration

    Live Webinar

    Register for Free
  • Slate Reimagined: The Surprising Advantages of Slate Rainscreen Cladding

    Webinar

    Register Now
  • The State of Residential Design Today: Innovations and Insights from RADA-Winning Architects

    Webinar

    Register for Free
All Events