Park Tower at Transbay

Project Details

Project Name
Park Tower at Transbay
Location
San FranciscoCA
Architect
Goettsch Partners
Project Types
Office
Project Scope
New Construction
Shared By
Goettsch Partners
Project Status
Built
Year Completed
2018
Style
Modern
Size
803,700 ft²
Certifications & Designations
LEED Gold
Team
Architect: Goettsch Partners
Associate Architect: Solomon Cordwell Buenz

Project Description

Located at the corner of Howard and Beale streets in the Transbay district of San Francisco, this commercial office tower sits across the street from the new Transbay Transit Center and just three blocks from San Francisco Bay. The 45-story tower is designed with a massing that integrates three different floor plates. Within these distinct floor plates, a series of large outdoor terraces are carved out to provide substantial outdoor tenant amenity spaces—mini “parks in the sky.”

The tower’s façade is composed of floor-to-ceiling glass and is articulated with vertical glass fins that relate to the location of the tower terraces, which occur at a three-story module. The podium façade also utilizes a series of single-floor fins to break down the scale at the pedestrian level. The fritted pattern is repeated through to the base of the building to help continue the tower articulation and materiality throughout the overall massing.

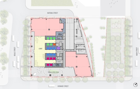
At the base of the tower is a covered 3,600-square-foot outdoor plaza with a 35-foot-high ceiling. The area is designated as privately owned public outdoor space (POPOS) that abuts both the tower’s main lobby and adjoining retail space. Along with a series of outdoor seating areas, a major focal point of this outdoor space is a large, site-specific art installation, entitled “Night Writing” by Teresita Fernandez, which is integrated into the main wall of the tower’s core.

With design features such as raised floors, natural ventilation and high-efficiency building systems, the project addresses several sustainable initiatives and is certified LEED Gold.

Upcoming Events

  • Design Smarter: Leveraging GIS, BIM, and Open Data for Better Site Selection & Collaboration

    Live Webinar

    Register for Free
  • Slate Reimagined: The Surprising Advantages of Slate Rainscreen Cladding

    Webinar

    Register Now
  • The State of Residential Design Today: Innovations and Insights from RADA-Winning Architects

    Webinar

    Register for Free
All Events