Park Shops Adaptive Reuse

Project Details

Project Name
Park Shops Adaptive Reuse
Location
101 Current DriveRaleighNC27607
Architect
Clark Nexsen
Project Types
Education
Shared By
CBrutvan
Project Status
Built
Year Completed
2009
Size
51,000 ft²
Team
MEP: United Engineering Group
Civil/Landscape: HadenStanziale
Structural: Stewart Engineering
General Contractor: Clancy & Theys

Project Description

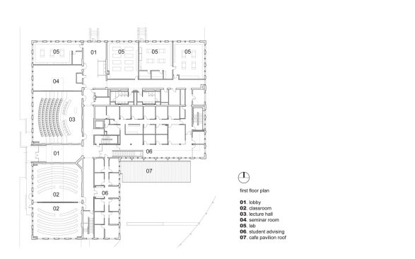
The Park Shops building at NC State University is a historic, 3-story masonry structure originally constructed in 1914 to house the Mechanical Engineering department’s shop classes. NC State partnered with the design team to preserve this historic building and conserve environmental resources, providing an opportunity to create a facility that highlights old and new and activates an emerging campus “neighborhood.” The adaptive reuse of the Park Shops building is a transformed, 21st century, multi-functional building housing classrooms, anthropology and archaeology research and teaching laboratories, classrooms, office space, and a café. This L-shaped building forms two sides to a new campus plaza that animates the surrounding campus neighborhood. The project includes a complete renovation of 48,000 square feet of existing space and an addition of 3,000 square feet, which includes a new glass-enclosed entrance pavilion. The pavilion and café fronting the plaza serve as an expression of the transformation of the building. The new main entrance has been relocated to the plaza side, helping to create public gathering spaces for students, faculty, and visitors to interact.

Upcoming Events

  • Reimagining Sense of Place: Materiality, Spatial Form, and Connections to Nature

    Webinar

    Register for Free
  • Homes that Last: How Architects Are Designing a Resilient Future

    Webinar

    Register Now
All Events