Pacitti House

Project Details

Project Name
Pacitti House
Project Types
Custom
Project Scope
New Construction
Shared By
Mahesh Rajanala
Project Status
Built
Style
Transitional
Size
4,930 ft²

Project Description

2003 RADA
Custom / More Than 3,500 Square Feet / Grand

When asked for ideas that would drive the design of their house, these clients came up with a fitting metaphor: a Saab. The house, they said, should be like the car: clean of line, well-crafted, and a little quirky in form. Those are the qualities the judges also admired. “It has the purity of an old American farmhouse, but still looks contemporary,” they said. “There are no gratuitous moves.”

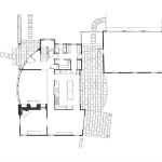
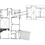
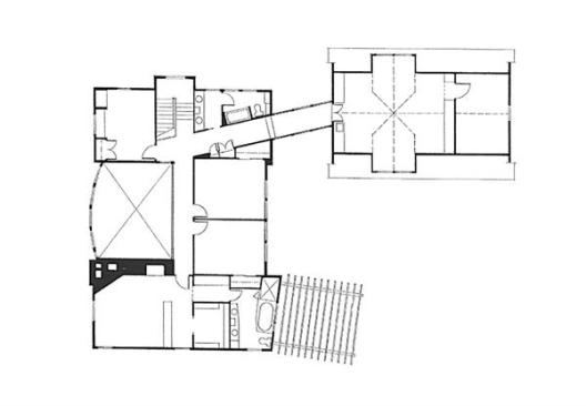
Located across the street from waterfront homes, the project’s greatest challenge was to design for both privacy and views. Architect Peter Twombly responded by creating a partly transparent core. The kitchen has a water view across the living room, but also a strong link to the rear terrace. Two enclosing wings shelter the house from close-by neighbors.

The vista is pleasant, but it isn’t all this house has to offer. By placing the structure against the front setback, Twombly created inviting spaces in back. A glassy bridge connects the house to a two-story garage and media room behind the house, and a pool house anchors the other corner of the lot. Tightly jointed stonework complements the house’s crisp lines and ties it to the site, part of a former farm.

Upcoming Events

  • Design Smarter: Leveraging GIS, BIM, and Open Data for Better Site Selection & Collaboration

    Live Webinar

    Register for Free
  • Slate Reimagined: The Surprising Advantages of Slate Rainscreen Cladding

    Webinar

    Register Now
  • The State of Residential Design Today: Innovations and Insights from RADA-Winning Architects

    Webinar

    Register for Free
All Events