Oxford, Md., Residence

Project Details

Project Name
Oxford, Md., Residence
Project Types
Custom
Project Scope
New Construction
Shared By
Suren
Project Status
Built
Style
Other
Size
4,600 ft²
Room or Space

Project Description

2005 CHDA
Custom Home 3,000 to 5,000 Square Feet / Merit Award

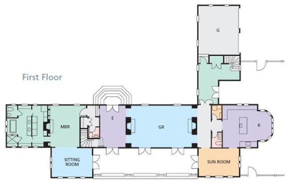
One judge’s metaphor describes the compatibility of this Maryland house with its waterfront site. “It sits like it’s lying on the beach with its toes in the sand,” he said. Muse Architects arranged the L-shaped plan so the public spaces line up parallel to the water, giving each room a prime view. The short leg of the L contains a garage and an upstairs guest suite, creating a gracious entry court at the front of the house. “The L allowed us to hide the garage from the approach to the house,” says principal Stephen Muse.

The owners, a recently retired couple, agreed the home’s architecture should defer to local building traditions. Its palette of clapboard, cedar shingles, and standing-seam copper echoes that of nearby historical buildings. So does its form, a collection of gable-roofed structures that break down the home’s scale. “You find a lot of older houses of this type in the area,” says Muse. “The main body is in the middle, and additions are made as the house ages.” He managed to make a decidedly un-traditional amount of glass on the waterfront side fit in with the home’s classic style, thanks to groupings of true divided-light windows separated only by individual shutters.

Upcoming Events

  • Build-to-Rent Conference

    JW Marriott Phoenix Desert Ridge

    Register Now
  • Reimagining Sense of Place: Materiality, Spatial Form, and Connections to Nature

    Webinar

    Register for Free
  • Homes that Last: How Architects Are Designing a Resilient Future

    Webinar

    Register Now
All Events