Overlook Residence

Project Details

Project Name
Overlook Residence
Location
Los GatosCA
Project Types
Single Family
Project Scope
Renovation/Remodel
Shared By
katie_gerfen
Project Status
Built
Year Completed
2015
Size
5,000 ft²
Team
Principal-in-charge: Neal Schwartz, AIA
Project manager/designer: Neil O’Shea
Project designer: Paul Burgin
Project team: Aaron Goldman, Joshua Yoches
Room or Space

Project Description

Text by Katie Gerfen

Every renovation begins with a niggling detail, no matter how small, and in the case of the Overlook House in Los Gatos, Calif., that catalyst was a chip in the veneer of a kitchen cabinet. “I said, ‘Oh, we can fix that,’ ” says Neal Schwartz, AIA, of San Francisco–based Schwartz and Architecture. “And I always thought that it was from that piece of chipped veneer that the project started to expand. Once they started thinking about it, the clients realized that it was time to refresh a lot of aspects of the house, even though they loved it.”

The Silicon Valley home was originally designed for the clients by San Francisco– and Omaha, Neb.–based Min|Day with Burks Toma Architects serving as architect of record, and was completed in 1999 with a pool and additional outdoor spaces added in 2005 (also by Min|Day). The refresh that began only a few years later, in 2009, was a result of “the fact that they were in a different point in their lives,” Schwartz says. (And it was carried out with the original architects’ blessing—Schwartz and E.B. Min, AIA, both teach at the California College of the Arts.)

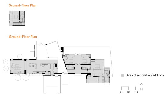
The initial areas of focus for the renovation were the master bath and the kitchen. The house was originally designed to be accessible, as one of the clients uses a wheelchair. But advances in ergonomic science and products, as well as the client’s understanding of their daily routines after a decade of living in their beloved custom space, meant that certain enhancements should be made. A reworking of the kitchen kept the countertop and range with open space underneath to accommodate a wheelchair and to allow views out to one of many decks surrounding the house, but with new appliances and cabinetry. The original stove was the best option available at the time, but always left some burners inaccessible; several newer options were better sized and the new range allows the client to reach all of the burners. An expanded kitchen island now serves as the nerve center of the largely open plan of the house’s main volume.

But the most visible alteration is the two-story addition at the west end of the house, which replaces the original single-level in-law suite (a new separate guest house was constructed on site). On the ground floor is an open family room that flows into the kitchen. Expansive glazing at the end of the new volume reveals a dramatic view of the surrounding mountains. Clad in shou-sugi-ban, or burnt sugi boards, the volume stands in contrast to the pale cement-board siding of the rest of the house. The large windows continue on the second level, which holds a 400-square-foot guest suite, and throughout the house, in an effort to maximize views of the 4.87-acre site.

The original inspiration for the renovation came from materials found on site, including boulders, wood, and leaves. The influence of these natural textures can be seen not only on the exterior, but also in the wood elements added inside, including the (now non-chipped) cabinets that mark the house’s next chapter. And all of this was born from a cabinet touch-up.

Upcoming Events

  • Design Smarter: Leveraging GIS, BIM, and Open Data for Better Site Selection & Collaboration

    Live Webinar

    Register for Free
  • Slate Reimagined: The Surprising Advantages of Slate Rainscreen Cladding

    Webinar

    Register Now
  • The State of Residential Design Today: Innovations and Insights from RADA-Winning Architects

    Webinar

    Register for Free
All Events