Out-to-Out House

Project Details

Project Name
Out-to-Out House
Architect
LEFT Architects
Project Types
Single Family
Project Scope
New Construction
Shared By
Sara Johnson
Project Status
Built
Size
2,690 ft²

Project Description

Despite the fact that skiing is a decidedly seasonal sport, and the rare one that makes the outdoors palatable in winter, a new relatively modest house in the prominent Lebanon ski resort Faqra Club embraces the warmer months as well. Beirut- and New York–based LEFT Architects dubbed the project the Out-to-Out House, and according to LEFT partner Ziad Jamaleddine, the inspiration stems from a Lebanese saying: “One can be skiing in the mountains and swimming in the sea within the same day.”

Located more than 6,200 feet above sea level and about 20 miles northeast of the country’s capital, the 250-square-meter (2,690-square-foot), two-story house sits on a steeply sloped triangular site between two hillside roads. The clients, a married couple with two children, wanted the house to provide varied areas that are suitable for entertaining, which they do often. “There is no hierarchy of spaces,” says LEFT partner Makram el Kadi.

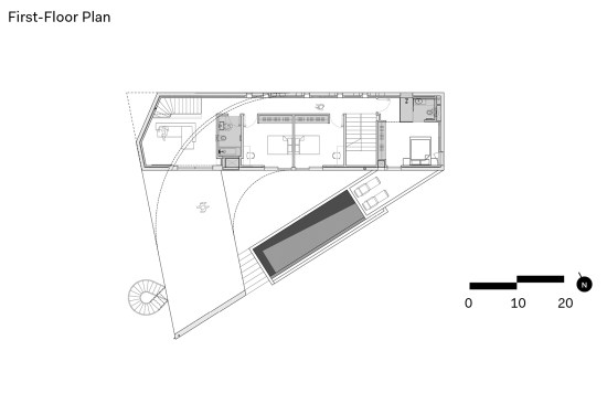
The four-bedroom house’s layout and geometry are deceptively simple, but it is a simplicity of appearance that masks a complex series of routes through the house using external and internal stairs. The architects placed two 5.5-meter-wide cast-in-place concrete volumes on the high point of the hill, connected at the eastern end. A trapezoidal base is topped by a boomerang-shaped floor that bends toward the south at the western end, creating a sheltered terrace off the base floor.

Because of the slope of the site, the entry from the north leads into the house’s top curved floor. The open-plan kitchen, dining, and living space share the swoop of the curve, with floor-to-ceiling windows that direct views to the pool below and the mountains to the northwest and southeast. Furnishings are kept minimal though comfortable, with a custom dining table and overhead lighting that match the curve of the walls. At the eastern end of the floor, a bedroom suite is separated from the living space by the main internal stair.

On the floor below, a single-loaded corridor links three south-facing bedrooms that look onto the outdoor pool area. At the western end of the trapezoid, a television room leads to the poolside terrace that sits under the curve of the upper level. A stair in this television room leads to a garage below.

The terrace and pool are among multiple outdoor living spaces designed to maximize the house’s entertaining space during the off-ski-season months. The roof deck, considered the home’s “hub” by the architects, mimics the shape and function of the living room below, and the roof’s metal guardrail widens into bars at the middle of the house’s curve, drawing guests to the best viewing points. Sculptural exterior spiral stairs, also metal, start at the poolside terrace and continue through the elevated inner courtyard, a narrow slot off the top-floor living area, to the roof.

While the concrete walls of the house seem impregnable from the north, the upper floor’s 14-meter (45-foot) southern span of pre-stressed concrete slabs above the pool plaza demonstrate “porosity”—which el Kadi says the firm intended as a critique of the local typology that uses stone construction with small windows to close the structure from the landscape and weather. LEFT transcends these conventions in Out-to-Out House with a myriad of exterior living spaces and ample glazing, and created a house in a ski resort that functions equally well in the summer.


Project Credits
Project: Out-to-Out House, Kfardebian, Lebanon
Client: Withheld
Design Architect: LEFT Architects, New York and Beirut . Makram el Kadi, Ziad Jamaleddine (partners); Daniel Colvard, AIA, Ana Conchan, Valeria Fervorari, Mahdi Sabbagh, Karine Yassine (team)
Landscape Architect: Francis Landscapes
Structural/M/E/P Engineer: BTUTP
Contractor: CPM Contracting
Size: 250 square meters (2,690 square feet)
Cost: $1 million

This article appeared in ARCHITECT’s July 2018 issue.

Upcoming Events

  • Design Smarter: Leveraging GIS, BIM, and Open Data for Better Site Selection & Collaboration

    Live Webinar

    Register for Free
  • Slate Reimagined: The Surprising Advantages of Slate Rainscreen Cladding

    Webinar

    Register Now
  • The State of Residential Design Today: Innovations and Insights from RADA-Winning Architects

    Webinar

    Register for Free
All Events