OSU Postal Plaza Gallery

Project Details

Project Name
OSU Postal Plaza Gallery
Location
720 S. Husband StreetStillwaterOKUnited States74074
Project Types
Cultural
Shared By
RandElliott
Project Status
Built
Year Completed
2013
Size
16,000 ft²

Project Description

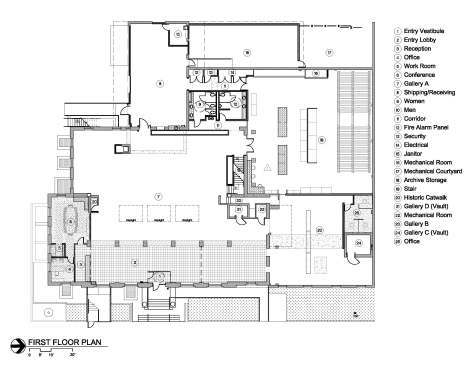
Vision Statement: The vision for the Postal Plaza Project is to create a place for the display of art; a place to safely and appropriately store art; and a place for the education of students of Oklahoma State University and the citizens of Stillwater and Oklahoma.

Architectural Concept: The architectural concept for the new Postal Plaza Gallery is to create a teaching space, viewing galleries, and a state-of-the-art storage facility to accommodate a new and growing collection. Our concept revolves around the idea of turning the space inside out. Our goal is to allow visitors to see behind the scenes to see how works are cared for, how an exhibit is organized and hung, and to expose the visitor to the process of collection management. This is the first time for the concept to be used in a university art space. Allowing the visitors to “peek” into spaces not normally visible is a perfect arrangement for teaching collections operations, care, and exhibition installation. Ultimately, the goal is to engage our community broadly, including OSU alumni, to help us create a world-class art collection and programs that can be used to support research at OSU and for educating students of all ages.

Upcoming Events

  • Design Smarter: Leveraging GIS, BIM, and Open Data for Better Site Selection & Collaboration

    Live Webinar

    Register for Free
  • Slate Reimagined: The Surprising Advantages of Slate Rainscreen Cladding

    Webinar

    Register Now
  • The State of Residential Design Today: Innovations and Insights from RADA-Winning Architects

    Webinar

    Register for Free
All Events