Ontario Residence

Project Details

Project Name
Ontario Residence
Location
WashingtonDC
Project Types
Single Family
Project Status
Built
Year Completed
2014
Size
4,600 ft²

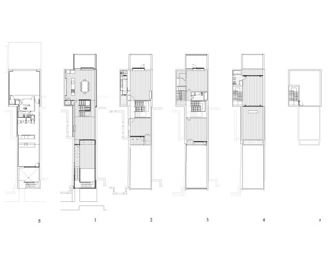
Project Description

In the late 1800’s, Washington DC developers built groups of row dwellings in typically full block increments. Among the longer streets of L’Enfant’s Plan, anomaly lots would emerge at the confluence of competing row dwelling developments. Often these lots would be left as interstitial space and utilized for community gardens. For over a century, a 14 foot-wide garden plot was experienced as void space in the neighborhood fabric. Historically, row houses are challenged by little outdoor living area and natural light due to their landlocked orientation. Re-imagining these pressures allows for a new row dwelling to emerge as a unique situational aesthetic. Two metal clad walls veil the adjoining masonry row dwellings and act as light baffles and support for vertical gardens. These living walls serve a dual purpose: providing a socially-sensitive elevation which speaks to the genius loci; while acting as organic screens to the street and adjacent apartment blocks to the rear. A three story volume clad with burned siding is inserted between the walls and houses living quarters and a roof deck. Incised through this volume, a perforated steel stair animates the interior and allows daylight to saturate the house. A stucco clad service volume supports the metal walls and wood volume as they cantilever towards the alley.

Upcoming Events

  • Design Smarter: Leveraging GIS, BIM, and Open Data for Better Site Selection & Collaboration

    Live Webinar

    Register for Free
  • Slate Reimagined: The Surprising Advantages of Slate Rainscreen Cladding

    Webinar

    Register Now
  • The State of Residential Design Today: Innovations and Insights from RADA-Winning Architects

    Webinar

    Register for Free
All Events