O’More Designer Show House

Project Details

Project Name
O’More Designer Show House
Location
MemphisTenn.
Architect
Looney Ricks Kiss
Project Types
Project Scope
New Construction
Project Status
Built
Year Completed
2017
Size
4,015 ft²
Team
Builder: Fry Classic Construction

Project Description

2018 Builder’s Choice & Custom Home Design Awards
Production, Semi-Custom, or Spec, 3,500 Square Feet or More: Merit

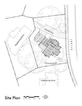
Architect J. Carson Looney of Memphis-based Looney Ricks Kiss crafted this handsome 4,015-square-foot home on a wooded 0.24-acre site in Nashville’s Você neighborhood. Finished in a combination of local limestone and darkly stained vertical and lapped horizontal siding, the intricately gabled house’s form is designed to blend with the site’s mature hardwood tree canopies.

The smart and elegant home was built as a designer show house, so Looney had to draw on his considerable residential experience to craft a solution for a common market demand: “It’s a home that is comfortable with only a couple as occupants, yet easily serves the needs for extended family visits and entertaining functions,” he says.

Located at an angle to the street, the house presents two faces—one formal main entrance and an everyday, garage entry for the family. Looney was striving for “a fine cottage image”—while striking an aesthetic middle ground. The plan achieves a balance as well, between open—with a clean, spatial flow—and closed, with some areas configured as walled-off rooms. The first-floor living room features an 11-foot-tall ceiling capped with a smooth radius cove that enhances the sense of space and height. In the more traditional rooms, the 9-foot-tall windows and doorways create an open flow between spaces that feels more contemporary.

The living room and kitchen occupy a single area, with an adjacent formal dining room. The kitchen’s white marble counter blends with the living room’s hues, while built-in millwork introduces darker colors that carry through to the adjacent scullery, library, and stair hall.

“I’m not partial to kitchens that resemble a cabinet showroom,” Looney says, so he kept the open kitchen at the end of the living room relatively simple, with many utilitarian items consigned to the scullery behind. “I pull out all of the cooking appliances, heavy prep, clean-up, pantry, and the need for additional storage to be easily accessed just a couple steps away, but around the corner,” he says.

The stairway, with an adjacent elevator, is tucked between the back entry and the scullery, where it’s convenient but not obvious. An expansive master suite and bedroom occupy the second floor.

Sustainable features include highly efficient aluminum-clad windows, low-VOC paints, an encapsulated crawlspace, recycled cellulose insulation, high-efficiency HVAC systems, and tankless water heaters.

An outdoor room, located off the living room, provides an intimate space with extensive openings to nature, with a fireplace that allows for four-season use. “While in the room, one has connecting views back into the home, and also out toward the greenery outside,” Looney says.—E.K.

“I admire that it’s dark, and I admire its surroundings. I think there is knowledge here.”— Juror Peter Rose

Upcoming Events

  • Design Smarter: Leveraging GIS, BIM, and Open Data for Better Site Selection & Collaboration

    Live Webinar

    Register for Free
  • Slate Reimagined: The Surprising Advantages of Slate Rainscreen Cladding

    Webinar

    Register Now
  • The State of Residential Design Today: Innovations and Insights from RADA-Winning Architects

    Webinar

    Register for Free
All Events