Olympic Archery Park & Hunter Education Center

Project Details

Project Name
Olympic Archery Park & Hunter Education Center
Location
ClintonNJ
Architect
ikon.5 architects
Project Types
Shared By
ikon.5 architects
Project Status
On the Boards/In Progress
Size
90,000 ft²
Certifications & Designations
LEED Gold
Team
Design Principal: Joseph G. Tattoni, FAIA
Managing Principal: Arvind Tikku, AIA
Technical Principal: Charles J. Maira, AIA, LEED AP

Project Description

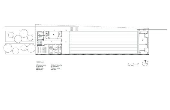
Sitting in a bucolic sloping meadow of native tall grasses and stands of black walnuts, Archery Park is a rusting rural shed nestled within old growth landscape of northwest New Jersey to house an indoor 90,000 square foot Olympic Archery training facility. The Division of Fish and Wildlife for the State of New Jersey intends to build a training facility for Olympic Archery, one of a few dedicated east coast facilities to support interest in the sport of archery. To mitigate its large 70 meter footprint on this natural site, the building has been carefully integrated with the topography. Exposed concrete walls of the indoor range retain the sloping land and create a level meadow to the north for an outdoor competition range and a flat grade below for the indoor range. The natural slope of the site gently rolls around the indoor range and establishes a landscaped entry court of river birch trees and native grasses. Rough-hewn concrete, regional field stone and corten steel panels harmoniously unite the structure to its natural surroundings. The corten roof overhang, screens and panels allow the sun, over the course of the day, to cast dramatic shadows on the building thus further integrating the structure to its natural condition. Perforated openings in the rusting steel panels sign the function of the building from the adjacent roadway. In addition to the Olympic-sized indoor archery training range, the facility houses offices, classrooms, exhibition lobby, concession and support facilities for archery and hunter education.

Upcoming Events

  • Build-to-Rent Conference

    JW Marriott Phoenix Desert Ridge

    Register Now
  • Reimagining Sense of Place: Materiality, Spatial Form, and Connections to Nature

    Webinar

    Register for Free
  • Homes that Last: How Architects Are Designing a Resilient Future

    Webinar

    Register Now
All Events