Olympia Residence

Project Details

Project Name
Olympia Residence
Location
YelmWA
Project Types
Shared By
dmadsen
Project Status
Built
Size
2,200 ft²

Project Description

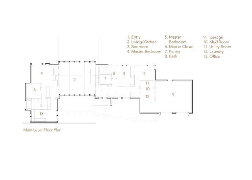
Eric and Melinda approached Coates Design Architects seeking a “livable, modern home that fits well in its natural, rural environment.” Simplicity and budgetary concerns were key themes, guided by the homeowners’ personal aesthetic and their flat, open 10.3-acre site, where the couple also raises chickens and a vineyard. As designers, this project was an opportunity to design a modest yet striking home with an L-shaped floor plan and flat roof line, using a controlled and thoughtful palette of materials. Most of the budget was spent on the open-plan kitchen, dining, and living area with a fireplace. Coates Architects meticulously selected wood panels for the ceiling, ensuring minimal directional or wild grain and also included luxurious open spaces, a concrete masonry fireplace and copper-toned birch ceiling to add warmth.
Most notably, this space is transparent from the outside. Floor to ceiling glazing on the North and South sides allows for views of the interior and back yard from the front of the house. This feature also welcomes the nearby foothills and wetlands inside.The couple’s desire for some privacy in their glass-enclosed living area prompted a concrete masonry unit wall in front. The economic material was ground and acid washed to give it an elegant finish, exemplifying how Coates Architects took care to work within for superior design. This wall also creates an intimate courtyard visible from the home office and living area, where concrete flooring used throughout the home continues beyond the South-side glazing to visually expand the space into back yard landscaping.By being efficient with our planning, working with simple materials and repeat elements throughout the house, we were able to deliver a modest, yet elegant home. This “modern home on the prairie” deserves note for its ability to balance nature and technical innovation within budgetary constraints.

Upcoming Events

  • Build-to-Rent Conference

    JW Marriott Phoenix Desert Ridge

    Register Now
  • Reimagining Sense of Place: Materiality, Spatial Form, and Connections to Nature

    Webinar

    Register for Free
  • Homes that Last: How Architects Are Designing a Resilient Future

    Webinar

    Register Now
All Events