Office in Av. Duque de Avila, Lisbon

Project Details

Project Name
Office in Av. Duque de Avila, Lisbon
Location
Av. Duque de Avila, LisbonLisbonPortugal
Project Types
Commercial
Project Scope
Interiors
Shared By
brcamara
Project Status
Concept Proposal
Year Completed
2014

Project Description

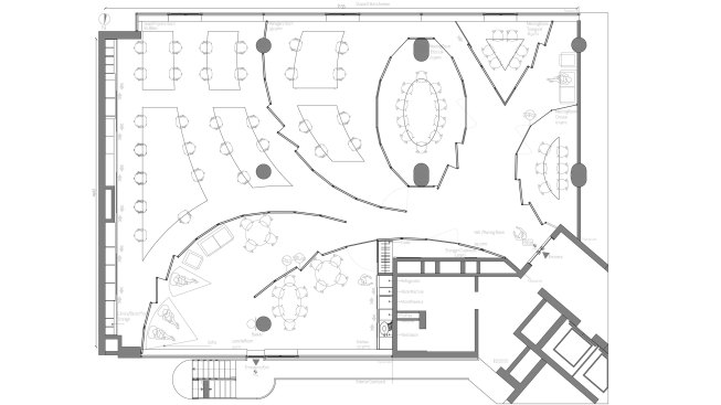
Three meeting rooms with primitive geometric forms, a elliptical room, symbolizing the mathematical rigor, using the reflective property of the ellipse, allowing the best acoustic behavior, a triangular room, which is the balance and the dissolution of polarities. two opposing forces or join a third point balance or synthesis, and a meeting room with a form of a triangle facing up, is steadily increasing success, dynamism and stability, and finally a meeting circular represents flexibility, infinite, limitless, passes the idea of wholeness, of movement, of innovation. These rooms are surrounded by organic shapes that create workrooms, lounche room and a kitchen with a meal room, making the dynamic space, valuing the natural light and the diversity of perspective frames.

Upcoming Events

  • Build-to-Rent Conference

    JW Marriott Phoenix Desert Ridge

    Register Now
  • Reimagining Sense of Place: Materiality, Spatial Form, and Connections to Nature

    Webinar

    Register for Free
  • Homes that Last: How Architects Are Designing a Resilient Future

    Webinar

    Register Now
All Events