OFFbeat

Project Details

Project Name
OFFbeat
Project Types
Single Family

Project Description

This project was selected as a Citation winner in the 2024 Residential Architect Design Awards, Renovation/Adaptive Reuse category.

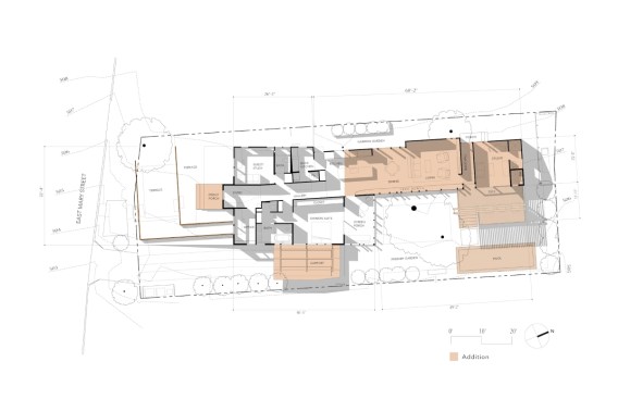
On a recently established one-block-long historic district in Austin, Texas, the architects faced the challenge of balancing preservation with renovation and expansion of a derelict asymmetric 1930s storybook cottage. To start, they restored the exterior of the quaint front entry, but just inside, they opened the flat ceiling to reveal the gable’s quirky and complex roof structure with white modern planes. A linear uplight is suspended in this space and is followed by LED strips set flush in the ceiling, all in alignment, down the house’s skewed central corridor.

As there were two heritage live oak trees occupying the center of the rhombus-shaped property, the architects expanded out the back of the house, positioning the addition parallel to the side yard setbacks and adjacent to the trees before extending a deck and lap pool area behind the trees as if to envelope them in a private courtyard. The addition essentially doubles the kitchen size and flows into an open plan dining zone and living room with a fully glazed wall facing the heritage trees. A 36-foot-long cantilevered concrete bench runs along this wall allowing one to sit and look outside perhaps in quiet contemplation. At the very back of the addition is an enclosed studio, a bath, sauna, and the aforementioned outdoor deck and pool.

PROJECT CREDITS:
Project: OFFbeat
Location: Austin, TX
Architect: Nick Deaver, AIA and Jes Deaver, AIA
Construction End Date: 11/2023
Size in Square Feet: 2,128 sf
Cost: Withheld

Interior Designer: Nick Deaver Jes Deaver Architecture
Structural Engineer: Steinman Luevano Structures
General Contractor: Form To Finish
Landscape Architect: Studio 8SC, ALYSSA JAMES, PLA, ASLA
Hardware: Alexander Marchant

MATERIALS AND SOURCES:
Appliances: Harway
Audio/Visual: Elite Systems
Bathroom Fixtures: Facets
Cabinets: Signature Cabinets
Concrete: Element 7
Countertops: Modern Stone Works
Doors: Builder’s First Source
Decking/Lumber Eastside Lumber & Decking
Flooring: Kristynik Hardwood Flooring
Glass (Site-built windows and other glass): Marble Falls Glass & Mirror
Metal: Austin Iron
Plaster and Stucco: Davinci’s Way
Siding: Fine Lumber
Shades: Made in the Shade
Tile: Daltile
Windows and Doors: Fleetwood Windows and Doors; Marvin (wet areas)
Sauna: Finlandia Sauna

Photo credits: Leonid Furmansky; Casey Woods; Raymond Castro

No taxonomies for this post.

Upcoming Events

  • Future Place

    Irving, TX

    Register Now
  • Archtober Festival: Shared Spaces

    New York City, NY

    Register Now
  • Snag early-bird pricing to Multifamily Executive Conference

    Newport Beach, CA

    Register Now
All Events