Oculi House

Project Details

Project Name
Oculi House
Location
New YorkNY
Project Types
Single Family
Project Scope
Renovation/Remodel
Shared By
Madeleine D’Angelo
Project Status
Built
Size
3,000 ft²

Project Description

This project was selected as a winner in the 2019 Residential Architect Design Awards
Architectural Interiors, Award

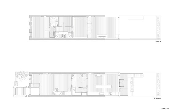
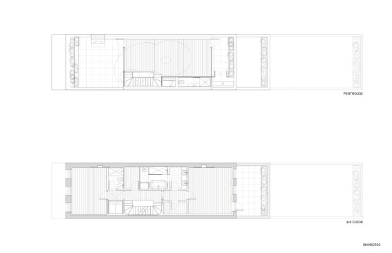
Dubbed Oculi House for the most memorable of the interventions by Brooklyn, N.Y.–based O’Neill Rose Architects, this transformation of a 3,000-square-foot brownstone spreads abundant natural light through four floors within the narrow constraints of a common New York City housing type. The architects drew on Isamu Noguchi’s forms for inspiration when developing two intersecting elliptical oculi for the ceiling of the fourth-floor lounge space. Positioned above the townhouse’s central stair, the two skylights drive the renovation’s daylighting strategy.

At the fourth-floor lounge area, floor-to-ceiling glazing is deployed at front and rear; it is supplemented on the lower floors by expansive windows facing the rear yard to increase the presence of natural light throughout the space.

Light-colored painted-plaster walls, light-stained custom wood floors, and thin, minimal balusters on the stairs walk the line between modern and traditional design, while enhancing the reflection and filtering of daylight. While light was critical to the project’s success, the architects don’t shy from dark colors: Narrow-mullioned black windows are reprised as room-dividing partitions and custom black kitchen cabinets and built-in bookcases also punctuate the spaces.

The architects note that the project’s development used both digital tools and traditional handcrafting methods: The oculi were conceived using 3D computer modeling, but ultimately realized through hands-on collaboration with plasterers who employed age-old material techniques. A similar process incorporating 21st-century visualization with traditional craft was used to create an expressive stone wall in the kitchen that artfully exploits the material’s natural variation.

Neither strictly modern nor traditional, Oculi House demonstrates the thoughtful intersection of many contrasts.

Project Credits
Location: New York
Client: Withheld
Architect: O’Neill Rose Architects, New York . Devin O’Neill (partner)
Interior Designer: Keryn Kaplan
Mechanical Engineer: Nino D’Antonio
Structural Engineer: Ross Dalland
General Contractor: ABR Molding General Contractors
Size: 3,000 square feet
Cost: Confidential

Materials and Sources
Appliances: Miele (cooktop, dishwasher); Sub-Zero (refrigerator)
Cabinets: Custom
Ceilings: Plaster
Countertops: Custom
Flooring: Wood
Lighting: Custom
Paints/Finishes: Farrow & Ball
Roofing: Kemper System
Windows/Doors: Bliss Nor-Am

FROM THE ARCHITECTS;

Our approach to this project was spurred by ideas of daylight, visual connection, and the intersection between digital and handcrafted process. The focus on the intersection between digital and handmade is most evident in the stone wall at the kitchen and the double oculi in the penthouse. Both were designed using precise 3D computer modeling, meticulous 2D drafting, and hands on collaboration with artisans using age old stone and plastering techniques.

One of the major shortfalls of the New York brownstone typology is that very little daylight reaches the center of the building. Our biggest challenge, to flood the house with light, was solved with the two intersecting oculi. Inspired by Noguchi, these two elliptical oculi fill the attic space. Light floods through this space and down the stairs, joining the light filtering through the foyer and the large glazed openings at the rear. Architects must understand the effect natural light has on human beings, and always think of new and innovative ways to welcome daylight into our lives, even in a very big (and sometimes very grey) city like New York. This project shows an unusual way of introducing daylight into a very typical New York residential building type.

Project Credits:
Project: Oculi House
Architects: O’Neill Rose Architects, New York .
Devin O’Neill (partner)
Interior Designer: Keryn Kaplan
Mechanical Engineer: Nino D’Antonio
Structural Engineer: Ross Dalland
General Contractor: ABR Molding General Contractors

Upcoming Events

  • Design Smarter: Leveraging GIS, BIM, and Open Data for Better Site Selection & Collaboration

    Live Webinar

    Register for Free
  • Slate Reimagined: The Surprising Advantages of Slate Rainscreen Cladding

    Webinar

    Register Now
  • The State of Residential Design Today: Innovations and Insights from RADA-Winning Architects

    Webinar

    Register for Free
All Events