Oak Knoll House

Project Details

Project Name
Oak Knoll House
Location
Napa ValleyCA
Project Types
Single Family
Project Status
Built
Year Completed
2016
Size
5,302 ft²

Project Description

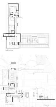
The site had been on the owner’s radar for many years, admired as he passed by on bicycle rides through the Napa Valley. With an oak studded knoll, surrounded by 4.5 acres of cabernet sauvignon vineyards, the land has an almost archetypal quality – the perfect Napa Valley setting for a beautiful new modern wine country home. The dream started to become reality in 2011 when the property became available and the clients, a couple living in the Silicon Valley area embarked on the journey to create their wine country dream home. The design brief was clear – the owners wanted a home that would respect and preserve the beautiful heritage oak trees that dotted the knoll, open up to the beautiful sunsets over Silverado Trail to the west, and have generous family outdoor living and entertaining areas oriented to the east side of the property – the quiet side with endless views of vineyards and rolling hills. The plan has two wings: a north-south wing that includes the two-story kitchen/dining/living spaces, and a guest suite on the ground floor; and two home offices and a master suite on the upper level. The master suite is located on the north end of the wing, accessed by a dramatic glass bridge that traverses the double-height great room below. The great room and the master suite enjoy views in three directions – sunrises and sunsets. The east-west wing includes the garage and utility spaces, terminating on the east end with a private guest suite. A stone and glass-clad stairway tower, with a unique wine cellar embedded into the landing, forms the vertical anchor to the architectural composition from which the wings radiate. One of the major themes of this design involves the relationship between architecture and nature. The master bedroom suite emphasizes this dialogue as it cantilevers over a stone plinth and soars into the canopy of one of the beautiful heritage trees, never quite touching the branches. As the branches twist and turn under and over the cantilevered terrace, it seems that the home has always been there, in perfect harmony with its natural setting.

Upcoming Events

  • Build-to-Rent Conference

    JW Marriott Phoenix Desert Ridge

    Register Now
  • Reimagining Sense of Place: Materiality, Spatial Form, and Connections to Nature

    Webinar

    Register for Free
  • Homes that Last: How Architects Are Designing a Resilient Future

    Webinar

    Register Now
All Events