Norton Towers-On-The-Court

Project Details

Project Name
Norton Towers-On-The-Court
Project Types
Multifamily
Project Scope
New Construction
Shared By
mohan reddy
Project Status
Built
Style
Traditional

Project Description

2004 RADA
Multifamily / Merit

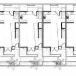
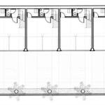
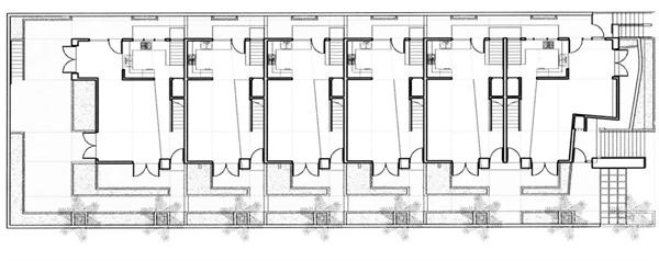
West Hollywood, Calif., has a legacy of courtyard housing, so the city encourages developers to build within the tradition. This project, however, is the first one to implement the standard on such a narrow lot–and to do it successfully. “Nicely executed,” said our judges.

Architect Michael B. Lehrer says the project’s master stroke is the west-facing aluminum and glass tower. It enlivens the modern facade of the six-unit building while also controlling natural light and ventilation. “On the ground floor of a typical unit, it would be dark,” he says. “But here all the light is captured and you experience it on all floors.” The tower acts as a thermal chimney, pulling hot air from the four floors and forcing it out through operable doors.

The exterior of each unit is delineated by bold colors, an inexpensive way to achieve richness and identity. And on the interior, Lehrer carried through the Modern aesthetic with such spare detailing as 1/4-inch reveals at wall bases, bamboo cabinetry and flooring, and synthetic concrete countertops.

Upcoming Events

  • Design Smarter: Leveraging GIS, BIM, and Open Data for Better Site Selection & Collaboration

    Live Webinar

    Register for Free
  • Slate Reimagined: The Surprising Advantages of Slate Rainscreen Cladding

    Webinar

    Register Now
  • The State of Residential Design Today: Innovations and Insights from RADA-Winning Architects

    Webinar

    Register for Free
All Events