Northeastern University East Village

Project Details

Project Name
Northeastern University East Village
Location
BostonMA
Architect
DiMella Shaffer
Project Status
Built
Year Completed
2014
Size
220,200 ft²

Project Description

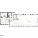
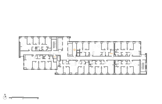
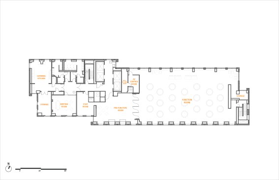
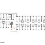
This 17-story student residence hall, occupying the site of the former YMCA gymnasium in the historic Fenway district of Boston, houses freshman Honors Program students in traditional dormitory units and upperclassmen in apartment style units. The design concept for the building stems from the dense, urban site at the eastern edge of the university campus. This location offers offering an opportunity to respond to both the city and campus with a more transparent expression at the building’s opposite corners. The exterior massing and skin of the building brings a renewed vitality to the existing urban fabric, while also being sensitive to the existing context of the campus and surrounding neighborhood. A multi-function event space located on the 17th floor provides spectacular views of the city and campus. This project was the first privately-developed student residence hall delivered in the Boston area. It helped the university meet its housing goals, provided additional revenue (from the sale of this parcel) to the YMCA for much-needed renovations and improvements and enhances the university’s urban visibility at the eastern edge of the campus.

Upcoming Events

  • Future Place

    Irving, TX

    Register Now
  • Archtober Festival: Shared Spaces

    New York City, NY

    Register Now
  • Snag early-bird pricing to Multifamily Executive Conference

    Newport Beach, CA

    Register Now
All Events