Northeast Bronx YMCA

Project Details

Project Name
Northeast Bronx YMCA
Location
BronxNew York
Architect
Marvel Architects
Project Types
Sports
Project Scope
New Construction
Project Status
Built
Size
53,361 ft²

Project Description

This project was selected as a Merit winner in ARCHITECT’s 2024 Architecture & Interiors Awards, Architecture: Sports and Recreation category.

“I felt that the YMCA was a beautiful, elegant solution to an underserved neighborhood. And it’s almost elevated to a civic building like a library or a museum.” –Juror Brooke Horan

In this underserved area of the Bronx, there are only 3.1 acres of parks and playgrounds per 1,000 children, which is significantly lower than the citywide average of 13.3 acres. The new 52,000 square-foot Northeast Bronx YMCA addresses the critical need for recreational space, realizing a 30-year dream of the community for a multigenerational community center. Developed through a partnership of community leaders and elected officials, it exemplifies the positive outcomes of collaborative efforts.

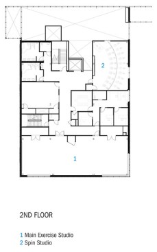
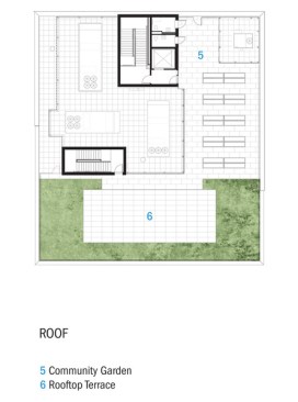
The modern YMCA serves as a recreation and fitness center, and crucially, as a community hub offering educational, social, and health programs to New Yorkers of all ages and income levels. The NE Bronx YMCA includes an aquatic center with a lap pool and family pool, a gymnasium, wellness center, and multipurpose rooms for classes, summer camps, and afterschool programs.

Located on a previously wooded 3-acre site, the building features three pavilions that preserve mature trees and respect the natural topography. This layout promotes openness and transparency, creating a welcoming atmosphere. The pavilions are connected by a glass corridor, enhancing visibility and incorporating natural light, reflecting the YMCA’s core values of openness and inclusivity.

The material palette is inspired by the Bronx’s natural landscape. The main pavilions are clad in weathering steel, which ages gracefully over time. Natural wood ceilings in the lobby and corridors connect the interior to the landscape. The design balances aesthetic appeal with the durability needed for a high-traffic facility. Notably, the pool area uses glulam beams for their beauty and corrosion resistance, and fabric ducts replace bulky ones to create a pleasing ceiling design for swimmers.

Sustainability was integral to the design, earning the project LEED v4 Gold certification. Reducing energy use and optimizing mechanical systems were top priorities, given the extended hours and heating demands of the pool. An energy simulation informed design decisions, resulting in a cogeneration plant that produces electricity on-site and recycles waste heat for the pool. This approach is expected to reduce annual energy consumption by 33% compared to the ASHRAE 90.1-2010 baseline, achieving full points for LEED Energy Optimization.

PROJECT CREDITS:
Project: Northeast Bronx YMCA
Location: Bronx, NY
Client/Owner: YMCA of Greater New York
Architect: Marvel:
Jonathan Marvel, FAIA, ASLA Aff., ANFA
Lissa So, AIA
Yadiel Rivera, ASLA, PLA
Martha Bush, RA
JS Yong, AIA
Justine AlA

Construction Start Date: June 2019
Construction End Date: Sept 2021
Interior Designer: Marvel
Mechanical Engineer: Polise Consulting Engineers DPC
Structural Engineer: Silman
Electrical Engineer: Polise Consulting Engineers DPC
Civil Engineer: Philip Habib & Associates
Construction Manager: Gilbane Building Company
General Contractor: Gilbane Building Company
Landscape Architect: Abel Bainnson Butz LLP, Marvel
Lighting Designer: Dot Dash
Other Consultants:
Geotechnical Engineering / Arborist: AKRF Engineering Inc
Acoustic / IT / Security: Cerami & Associates Inc
Foodservice: Clevenger Frable LaVallee, Inc.
Sustainability: Code Green Solutions Inc
Code: Design 2147 Ltd
Cost Estimation: Dharam Lally & Smith
Specifications: Robert Schwartz & Associates
Envelope: RWDI USA Inc / The Facade Group
Commissioning: Steven Winter Associates Inc
Pool Consultant: Lothrop Associates Architects

Size in Square Feet: 52,000SF
Cost: $51,000,000

MATERIALS AND SOURCES:
Ceilings: Wood Ceiling: 9wood
Exterior Wall Systems: Weathering Steel Panels: QC Facades
Walls: Insulated-panel: Kalwall

Upcoming Events

  • Design Smarter: Leveraging GIS, BIM, and Open Data for Better Site Selection & Collaboration

    Live Webinar

    Register for Free
  • Slate Reimagined: The Surprising Advantages of Slate Rainscreen Cladding

    Webinar

    Register Now
  • The State of Residential Design Today: Innovations and Insights from RADA-Winning Architects

    Webinar

    Register for Free
All Events