Northcote House

Project Details

Project Name
Northcote House
Architect
Star Architecture
Project Types
Single Family
Project Scope
New Construction
Shared By
Miabelle Salzano
Project Status
Built
Year Completed
2018
Size
2,906 ft²

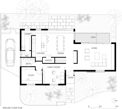
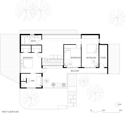
Project Description

FROM THE ARCHITECTS:

This project is located in an inner-city suburb of Melbourne, Australia, and provides a response to the difficulty of designing a house to a client’s brief on a small block within a cozy neighbourhood cul-de-sac.

Our clients sought to respect the existing single level character of the suburban court by minimising the visual impact of their double-storey home. Timber screens were used as a device to soften the solid rendered walls behind and to unify the facade.

The downward sloping external timber screen compresses the frontage, giving the illusion of the house bending toward the ground. A spacious first floor balcony, enriched with potted plants, faces the street to create natural rather than built skyline. The balustrade’s lowest point faces the street, and combined with the sculptural entry canopy gives a gentle nod to the surrounding houses.

A hidden timber deck within the roof space is designed to provide a relaxation/meditation space with the city views.

A desire to avoid harsh materials prompted an environmentally friendly interior that uses oils instead of paints, polished concrete slab, and naturally oiled spotted gum stairs and flooring.

The design utilises solar energy, northern orientation, cross-ventilation, exposed concrete floor, batten shutters and rendered brick veneer walls to create substantial thermal mass and reduced energy use, while maximising occupant comfort.

Through an ethical and gentle approach, this architectural solution reconciles the needs of a modern family with a desire to respect and enhance their existing neighbourhood.

Upcoming Events

  • Build-to-Rent Conference

    JW Marriott Phoenix Desert Ridge

    Register Now
  • Reimagining Sense of Place: Materiality, Spatial Form, and Connections to Nature

    Webinar

    Register for Free
  • Homes that Last: How Architects Are Designing a Resilient Future

    Webinar

    Register Now
All Events