North Fork Bay House

Project Details

Project Name
North Fork Bay House
Location
60 Peconic Bay BlvdLaurelNY11948
Project Types
Single Family
Project Scope
New Construction
Shared By
UGC User
Project Status
Built
Year Completed
2015
Style
Modern
Size
1,650 ft²
Team
Principal: Joseph Tanney
Principal: Robert Luntz
Project Architect: Jonathan Tucker

Project Description

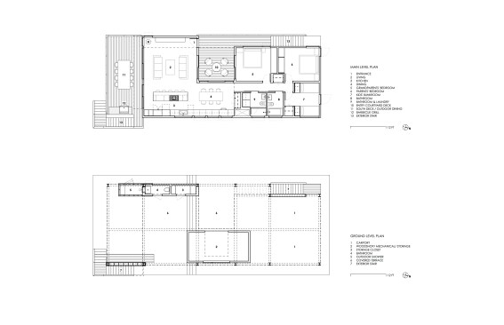
With direct access to Great Peconic Bay, this prefab beach house is designed to be a weekend retreat for a young Brooklyn family of four, and seasonal residence for the client’s Florida-based parents. The prefabricated modules are set atop the site-built steel frame, allowing for views of the bay as one arrives via the long, tree-lined gravel drive. While the house is not technically within a FEMA-designated flood zone, the strategy of lifting the house is a direct response to the client's concerns about potential flooding in the future. Simultaneously, this strategy provides outstanding views of the bay from the main level, while creating shaded and sheltered outdoor space below the house for parking, lounging, and woodworking—including the grandfather's latest project: building a small sailboat. One gains entry via an open-riser exterior stair to a courtyard deck, where adjacent trees fill the view and sunlight flows into the house. Full-height sliding glass doors facing the bay connect the open-plan communal space to a large bayside deck and the beach beyond. As a weekend retreat, the family's two young girls enjoy their bunkroom with custom built-in Baltic birch bunk beds and integrated toy cubbies. Parents and grandparents also appreciate their own custom built-in Baltic birch bed platforms with integrated side tables and headboards, as well as the built-in natural maple wardrobes. Interior materials evoke a beach vibe, and make for easy cleaning: large-format tile flooring throughout the home, subway tile bathroom walls with glass mosaic tile accents, Caesarstone countertops, Corian backsplashes, maple cabinets, Baltic birch millwork, and stainless steel appliances. Exterior materials—chosen for their durability—hold up to the harsh coastal climate. Kynar-coated corrugated aluminum siding withstands the corrosive salt air while providing beautiful tone and texture. Warm natural cedar used for siding, railings, the outdoor shower enclosure, and the brise-soleil—along with Ipe decking—complement the cool metal siding.

Upcoming Events

  • Build-to-Rent Conference

    JW Marriott Phoenix Desert Ridge

    Register Now
  • Reimagining Sense of Place: Materiality, Spatial Form, and Connections to Nature

    Webinar

    Register for Free
  • Homes that Last: How Architects Are Designing a Resilient Future

    Webinar

    Register Now
All Events