North Central Phase II Development

Project Details

Project Name
North Central Phase II Development
Location
PhiladelphiaPA
Project Scope
New Construction
Shared By
Melissa Thomas
Project Status
On the Boards/In Progress
Style
Other
Size
123,000 ft²
Certifications & Designations
LEED Silver
Team
Principal-In-Charge: Kurt Raymond, AIA
Project Manager: Daryn Edwards, AIA, LEED AP

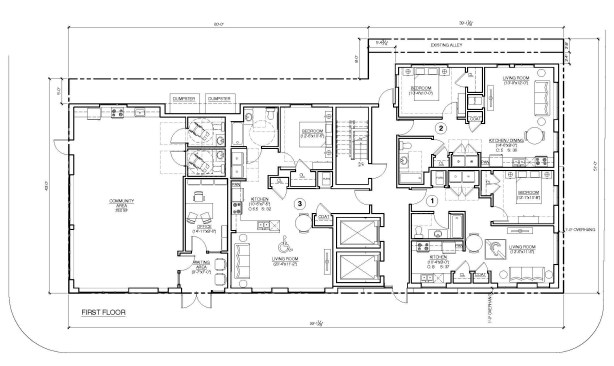
Project Description

The North Central Phase II Development Project consists of multiple scattered sites located in the north central neighborhood of Philadelphia. As part of a larger CHOICE grant, intended to substantially reinvigorate an entire neighborhood, this project totals 89 rental units in two and three-story townhomes, triplexes and two senior apartment buildings, one with a community room. The development will have nine wheelchair accessible units and two additional units that are fully accessible for the vision and hearing impaired. Visitability is achieved via sloped walkways at the front or rear entrances of the units, with planters and landscaping to soften the edge of the sidewalk. The development is on track to attain certification for energy Star, LEED Silver and Enterprise Green Communities.

Upcoming Events

  • Design Smarter: Leveraging GIS, BIM, and Open Data for Better Site Selection & Collaboration

    Live Webinar

    Register for Free
  • Slate Reimagined: The Surprising Advantages of Slate Rainscreen Cladding

    Webinar

    Register Now
  • The State of Residential Design Today: Innovations and Insights from RADA-Winning Architects

    Webinar

    Register for Free
All Events