Nisser Micro Cabin

Project Details

Project Name
Nisser Micro Cabin
Location
NissedalNorway
Project Types
Single Family
Project Scope
New Construction
Shared By
Ayda Ayoubi
Project Status
Built
Year Completed
2017
Size
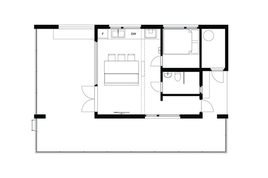
280 ft²
Team

Project Description

FROM THE ARCHITECTS:

A local cabin developer contacted Feste Landscape / Architecture to design a floating micro cabin for their portfolio. Due to the local planning restrictions of the Nisser lake in Telemark, Norway, the prototype has been instead designed on stilts. However, the ultimate aim is to develop a floating version of the same cabin in the future.

From a sustainability point of view, the micro cabin offers an alternative to the emerging trend in the Norwegian holiday home market of luxury cabins with sprawling footprints.

The design attempts to maximise the user’s experience of the lake and the surrounding landscape. The glazed façade between the kitchen/living room and the covered terrace creates a seamless link between the inside and outside. Externally, the walls and roof of the cabin are clad in thermally treated pinewood, creating a precise and expressive design and at the same time blending in with its surroundings. Gutters and downpipes are integrated in the external walls allowing for clean facades from all angles. The floorplan measures 26sqm with a small mezzanine loft for sleeping. In total the cabin sleeps seven people.

Access to electricity, water and sewage is provided through a flexible pipe which enters from underneath the cabin. This system is also designed to function with a floating version of the cabin.

Upcoming Events

  • Build-to-Rent Conference

    JW Marriott Phoenix Desert Ridge

    Register Now
  • Reimagining Sense of Place: Materiality, Spatial Form, and Connections to Nature

    Webinar

    Register for Free
  • Homes that Last: How Architects Are Designing a Resilient Future

    Webinar

    Register Now
All Events