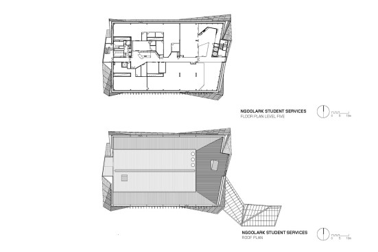
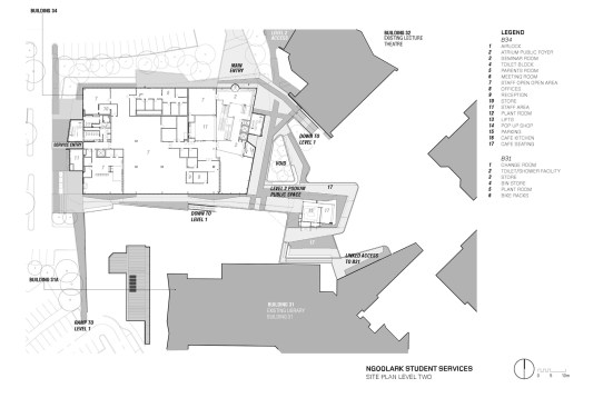
Ngoolark Student Services Building

Project Details

Project Name
Ngoolark Student Services Building
Location
PerthAustralia
Project Scope
New Construction
Shared By
sashaboglu
Project Status
Built
Year Completed
2015
Team

Project Description

FROM THE ARCHITECTS:

‘Ngoolark’ (the Noongar name for the
Carnaby Cockatoo) brings to ECU a building and place with a new living and
active platform for ‘University Life’, creating an interactive and integrated
campus building bringing together the multitude of functions required to
provide the highest quality of student services for the campus community and
future master-plan.

The project comprises the development of a
new campus building, recognising the need to invest in the urban life of the
University creating a combined campus marketplace, podium and forum.

Levels one and two provide a strong vibrant
and active student hub, with the more ‘private’ corporate structure on upper
levels providing flexible and high quality office research and innovation
workplaces.

The focus for the whole building is to
create an exciting and high quality new typology of accommodation with an
iconic identity and an open, connected and collegiate atmosphere.

The site’s inherent level changes provide
exciting opportunities to create formal and informal landscaped environments
linking together to create a ‘campus street’ filled with both active and
passive places.

The rich architectural palette comprises a
wonderful faceted concrete podium and a gold perforated aluminium sun-shading
skin, folded and patterned with the feathers of the Carnaby Cockatoo.

The podium, the lower forum, the external
skin and the atrium work together to create a building which is about
landscape; which are natural and cultural with the themes; Ngoolark; Joondal
and Jingee which are integrally linked to the local Noongar Aboriginal people
of the South West of Australia.

Upcoming Events

  • Design Smarter: Leveraging GIS, BIM, and Open Data for Better Site Selection & Collaboration

    Live Webinar

    Register for Free
  • Slate Reimagined: The Surprising Advantages of Slate Rainscreen Cladding

    Webinar

    Register Now
  • The State of Residential Design Today: Innovations and Insights from RADA-Winning Architects

    Webinar

    Register for Free
All Events