Newell Rubbermaid Design Center

Project Details

Project Name
Newell Rubbermaid Design Center
Location
Kalamazoo MI
Architect
Byce & Associates
Project Types
Project Status
Built
Year Completed
2014
Size
40,000 ft²

Project Description

FROM THE AIA CHICAGO:

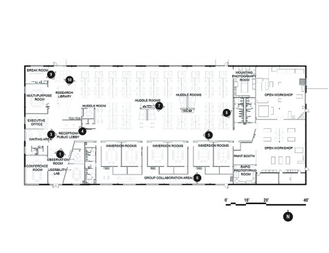
Located on a research campus of Western Michigan University, the Newell Rubbermaid Design Center was created to support collaborative teams of designers to develop new products that are as small as a pen and as large as backyard storage shed.  A tangible symbol of the manufacturer’s commitment to design and innovation, the center is a place where multiple disciplines can come to together to achieve better outcomes than they would have separately.

 The design team worked closely with university and corporate stakeholders to create an inspiring work environment that embodies the spirit of design. The entire center was designed to facilitate collaboration, from the large open space where all the designers work together; to the Innovation Lab, Huddle Rooms, and Immersion Rooms, it‘s all about supporting creativity.

 Finding inspiration in the rich tradition of “craft” in the region, the furnishings and materials were sourced from the local area.  Wood was a key element that was utilized in a variety of ways, from the artistic use of 3-D blocks forming the reception area wall, to machined horizontal slats on walls & ceilings to create enclosure and super-graphic wayfinding, to a large rough-hewn plank tabletop that retained the natural shape & texture on one edge.

 The team developed a clean, neutral and natural materials palette that included ground concrete floors and white walls, allowing the wood elements to be highlighted in the design.   While much of the desking systems were repurposed from existing inventory, the team augmented this with “signature” Herman Miller pieces that represented the importance of good design, as well as were manufactured just miles from the project site.

Upcoming Events

  • Slate Reimagined: The Surprising Advantages of Slate Rainscreen Cladding

    Webinar

    Register Now
  • The State of Residential Design Today: Innovations and Insights from RADA-Winning Architects

    Webinar

    Register for Free
  • Specifying Smarter with Copper-Clad Aluminum (CCA) Metal-Clad Cable

    Webinar

    Register for Free
All Events