New Passenger Terminal at Franjo Tudman International Airport Zagreb

Project Details

Project Name
New Passenger Terminal at Franjo Tudman International Airport Zagreb
Location
ZagrebCroatia
Project Types
Project Scope
New Construction
Project Status
Built
Year Completed
2016
Size
708,917 ft²
Team

Project Description

FROM THE ARCHITECTS:

In 2008, international competition jury awarded first prize and commission to the entry designed by Croatian authors-architects Branko Kincl, Velimir Neidhardt and Jure Radić.

The French concessionaire started building in 2013 executing the design delivered by authors-architects and design companies IGH projektiranje d.o.o., Kincl d.o.o., Neidhardt arhitekti d.o.o. The new terminal complex opened in March 2017 as the 1st phase construction of 65.000 m2 serves up to 5 million passengers a year. At the end of 30 year concession 2nd phase additions will serve 8 million passengers.

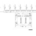
The landside surroundings spatial organization allows the dominance of a pedestrian esplanade in the middle. The traffic functions between two traffic roundabouts. They serve as connecting points to viaduct ramps leading to or from the departure level curb at 10.20 m above the ground.

Main public levels at the landside of the terminal and the ground and upper departure levels are connected by outdoor escalators and elevators, and by interior sets of elevators and stairs within circulation cores.

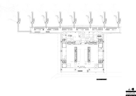
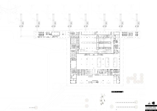
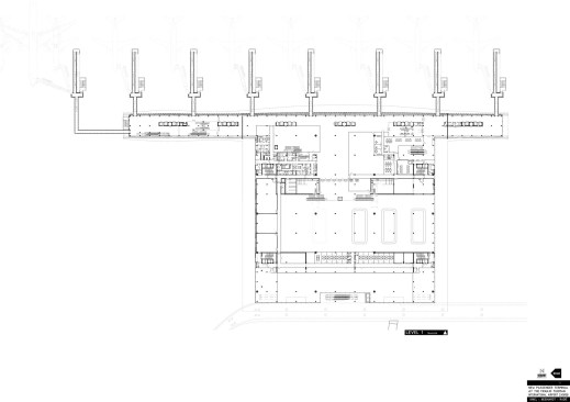
Three levels of reinforced concrete structure form the terminal’s base. A dynamic roof envelope, which unwraps itself to levitate above the terminal hall generates the free dynamics of the structural net—an iconic expression of the landscape and its relief features as original attributions to the generated architectural form. The envelope structure is a spatial truss curved in two directions deploying tens of thousands prefabricated steel tubes and nodes based on the triangular off-grid module.

Flexibility of conceptual scheme allows for adaptability with open spaces formed by predominantly 14.40 x 4.40 m modular column grid at the concrete base. Above, dynamic space frame structure forms the top of the departure hall borne by the closed-umbrella-like pillars on the floor plan grid of 28.80 x 43.20 m. The pier design allows for the flexibility that is necessary to sustain the expected increase of air traffic in the future.

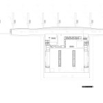
Functional organization is developed and distributed vertically among the four levels:

-Arrival level is located at the level “0” ground floor. This level along the north perimeter is also the home of the baggage handling system. At this level on both sides of the terminal there are departure/ arrival hall areas serving bussed passengers.

-Arrival gallery/ Transfer- transit level at the 1st floor provides the passengers arriving from eight air bridges to gain their first impressions of the terminal.

-Departure hall areas with check-in islands at the 2nd floor level are accessible from the urban traffic domain by sloped inbound and outbound ramps.

-Leaving the check-in areas passengers reach the boarding ticket control counter and subsequently are invited to ascend to the departure gallery at the 3rd floor level. Upon security check and passports control, passengers descend to duty free/ commercial amenities located before the reach of air bridges gates at the departure hall level.

The NPT building could sustain a major crisis possibly caused by a failure of all standard energy supply sources. All other procedures support an ecologically sustainable concept of the completed design.

This description has been lightly edited for clarity.

Upcoming Events

  • Design Smarter: Leveraging GIS, BIM, and Open Data for Better Site Selection & Collaboration

    Live Webinar

    Register for Free
  • Slate Reimagined: The Surprising Advantages of Slate Rainscreen Cladding

    Webinar

    Register Now
  • The State of Residential Design Today: Innovations and Insights from RADA-Winning Architects

    Webinar

    Register for Free
All Events