New House

Project Details

Project Name
New House
Architect
Râu Arch
Project Types
Project Scope
New Construction
Shared By
Ashleigh Popera
Project Status
Built
Year Completed
2017
Size
1,195 ft²
Team

Project Description

FROM THE ARCHITECTS:

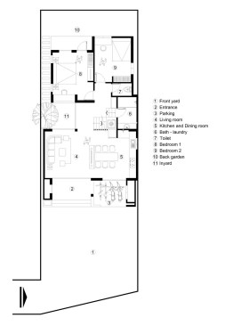
As an architect in Dong Hoi (Quang Binh), Pham Hung has a lot of ideas, and decided to experiment while building his own house. After a year of choosing the options, and ten months of construction, the one-story house was complete, with a distinct appearance compared to surrounding buildings.

On a property of more than 200 m2, Hung built a 110 m2 house, including a floor and a mezzanine, with a living room, kitchen, 3 bedrooms, a worship room, and washing area.

The most impressive feature of the house is the facade using split stone and brick ventilation. Due to a limited budget and the desire to choose custom materials, Hung spent a lot of time traveling through the provinces to select brick and stone. Wanting the construction to be meticulous, he had to pick everything himself.

After choosing the kind of split stone, he hired the sawmill to make small 3-4 cm pieces for the area around the house. Brick ventilation creates a charming façade and attracts attention in the living room area. The young architect chose a wood asphalt floor that can resist water, fire, termites and sap. The house is airy, with lots of light, thanks to the windows and brick ventilation. Bedrooms in brown-white tones and decorative tiles are warm and light in color, and romantic. The familiar materials used with a sophisticated design has attracted the attention of many people in Quang Binh.

Editor's note: This description has been edited for clarity.

Upcoming Events

  • Design Smarter: Leveraging GIS, BIM, and Open Data for Better Site Selection & Collaboration

    Live Webinar

    Register for Free
  • Slate Reimagined: The Surprising Advantages of Slate Rainscreen Cladding

    Webinar

    Register Now
  • The State of Residential Design Today: Innovations and Insights from RADA-Winning Architects

    Webinar

    Register for Free
All Events