New Erbaa Pinery Social Habitat

Project Details

Project Name
New Erbaa Pinery Social Habitat
Location
TokatErbaaTURKEY
Architect
SELIM SENIN
Project Scope
New Construction
Shared By
Selim Senin
Project Status
Concept Proposal
Year Completed
2015
Style
Modern

Project Description

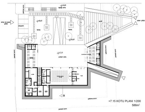
Designed a structure that is lost in space.Habitat sits on 5 different heights.The richness of space is provided by the courtyard.The terrace with stairs and ramps provide access easily.Open space and public space through different levels are turned into public places without losing its influence in both specialized.
Hotel units in the lower level so that they can directly access the drive that is solved two floor and provided transition down from the hotel courtyard.Access from the lower level, which entered the hotel indoor pool is open. There is an indoor pool in the courtyard down below.
Buildings are not only providing a habitat indoors. At the same time open fields, people with the terraces and courtyards created in the structure and natural level are designed to be usable by all areas.Restaurant, multi-purpose hall and coffee to look at a common courtyard and interior space thanks to the use of outer space, this courtyard are integrated together.
Structure consisting of different seating areas at different level offers a dynamic living space by removing space from a uniform approach.Up and down the court yard is provided with each of the places connected to each other integrated ramp. Using ramps that connect to level to provide access from the pine structure, the structure is provided with pine become part of each other. Contributes to the pine’s natural environment with an open field.

Upcoming Events

  • Slate Reimagined: The Surprising Advantages of Slate Rainscreen Cladding

    Webinar

    Register Now
  • The State of Residential Design Today: Innovations and Insights from RADA-Winning Architects

    Webinar

    Register for Free
  • Specifying Smarter with Copper-Clad Aluminum (CCA) Metal-Clad Cable

    Webinar

    Register for Free
All Events