NCCU Center for Public and Business Administration Education

Project Details

Project Name
NCCU Center for Public and Business Administration Education
Location
TaipeiTAIWAN
Project Types
Education
Shared By
library
Project Status
Built
Year Completed
2021
Style
Modern
Certifications & Designations
Other

Project Description

NCCU Center for Public and Business Administration Education (CPBAE) provides executive education for senior civil servants and industry leaders. Having outgrown its original building, the project is conceived as both a conceptual and architectural microcosm of the university and the city.

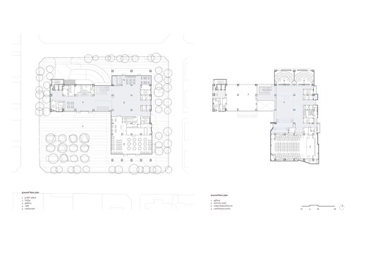
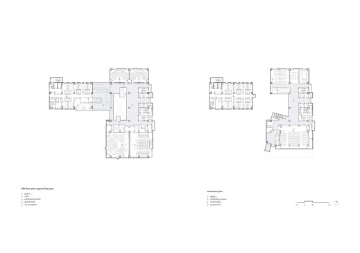
Situated within a vibrant mixed-use neighborhood, the project condenses the essential functions of the university onto a site that is 100 times smaller than its suburban main campus. Thus the horizontal axis arrangement of the main campus is turned into a vertical orientation. The program elements are then configured and stacked using a modular grid system and split into two volumes. One volume houses the academic and conference elements and is clad in stone, while the other comprises of 100 guest rooms with an exposed concrete facade. In between, a series of transparent volumes, namely the lobby, atrium and cafe, project the center’s inner workings to the city beyond.

The major functional spaces are reachable through a series of hierarchically and sequentially arranged public areas, filled with daylight and ventilated naturally. A 30-meter high central atrium takes the place of the traditional campus quad, which is further enlivened by the glass pods of small meeting room dramatically protruding into the void.

At the street level, the ground floor integrates both existing and newly planted vegetation within a porous site boundary. The entrance plaza is designed to gather people, host events, and facilitate leisure activities for the neighborhood. The various landscaped terraces further foster social, academic, and professional interactions. 

Upcoming Events

  • Design Smarter: Leveraging GIS, BIM, and Open Data for Better Site Selection & Collaboration

    Live Webinar

    Register for Free
  • Slate Reimagined: The Surprising Advantages of Slate Rainscreen Cladding

    Webinar

    Register Now
  • The State of Residential Design Today: Innovations and Insights from RADA-Winning Architects

    Webinar

    Register for Free
All Events