Nanjing Public Medical Center

Project Details

Project Name
Nanjing Public Medical Center
Location
No. 1, Kangfu RoadTangshan StreetNanjingCHINA
Architect
Lemanarc SA
Project Types
Healthcare
Shared By
lemanarcSA
Project Status
Built
Year Completed
2016
Team
Chair architect: Vincent Zhang
Medical function design: Daniel Pauli
Other team members : Pansy Ye
Other team members: Josef Kalcik

Project Description

Nanjing Public Medical Center, surrounded by hills, with one thousand and two hundreds’ beds, is located in the Qinglong Mountain, which lies to the southeast of Nanjing. It has a total floor area of about 150,000 square meters.

As the most traditional isolated living quarters for infectious diseases treatment, it became a complex design to build compared to other ordinary projects due to its complex mountain topography, water system, and vegetation conditions. What’s more, a conjoint design of various infectious diseases hospital including a general hospital, this combination of hospitals all in one site is atypical on a global scale.

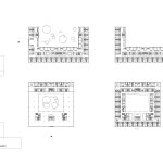
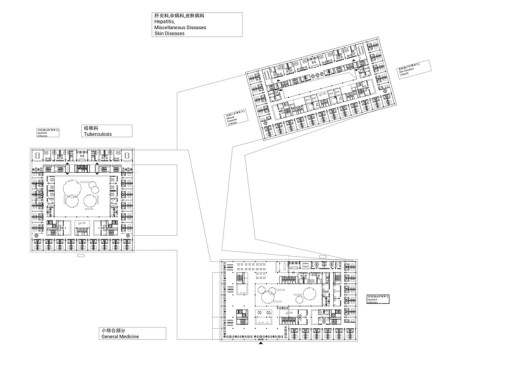
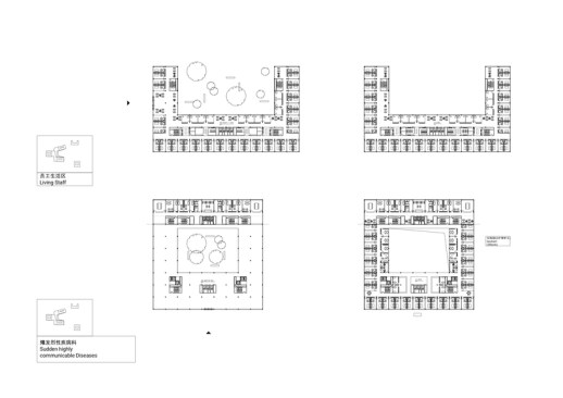
As the biggest infectious diseases hospital in the world, the building group includes a downwind building of tuberculosis, a building of infection of various touch diseases and miscellaneous diseases, and a common non-infectious disease hospital running independently. These three buildings constitute the core medical zone.

The lower part of these three medical zones is joined by a united medical and technique service zone, where polluted area and unpolluted area are meticulously separated and
disinfected. On the one hand, this way divides the different infection areas; on the other hand, the intensive use of medical resources is maximize. The clean underground storage, disinfection area, and logistic zone can dispose pollutants according to zones and control pollutants uniformly.

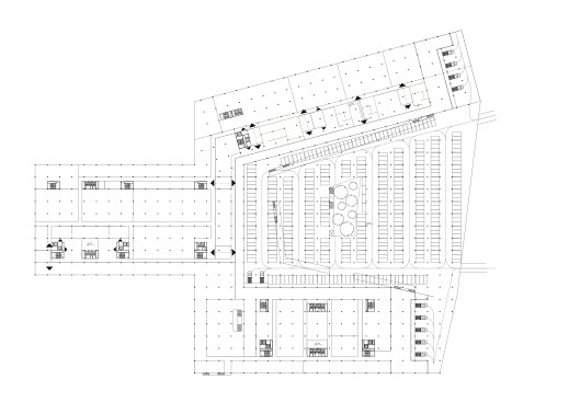
The emergency center using the quarantine zone from the little valley has the option to close the center automatically, and the infection can expand in a safe area whenever a sudden infection occurs. The self-contained resting area for employees in the north high area protects the staff from potential infections.

According to the features of the hospital, from the whole hospital to each office and each ward, it creates the separation of doctor and patient, clean and dirty, polluted area and unpolluted area. Producing respective separations and control of pollution areas among different infections.

By taking advantage of the vertical space, the centre area of the building group is used as the pollution area, offering a safe and comfortable evacuation square for medical workers and common patients of general hospital. In addition it protects the clean and independent management of the general hospital. The circulation access for infection patient is designed in the bypass road to avoid possible contamination. Offering a good external accessibility helped create a defined separation of the internal circulation.

Lastly, the project design takes full advantage of its natural conditions, such as the protective screen (mountains), vertical space, the shape of the mountain and river system, as well as the local wind direction, sunlight, etc. Its designed successfully to provide a sharing, safe, independent and large-scale infectious disease hospital, through a in-depth study of management features of different infections treatments.

A light wave shape system with sunshade is a way of energy-saving; it also offers soft lighting and privacy atmosphere for indoors. The scenery surrounded by mountains and its quiet lake formed by using the area to release the floodwater brings patients the sense of safety and yearn for life. It seems like Creator’s caring embrace.

In 2020, Nanjing Public Medical Center became the designated hospital for the treatment of covid-19. Due to its progressive design, they implemented new treatment strategies such as key monitoring, daily consultation, psychological treatments at the same time as synchronizing it with traditional Chinese medicine. By these means, they successfully achieving the goal of ‘zero infection’ and ‘zero deaths’ from the medical staff. These practices have been analyzed by a group of experts of the joint prevention and control mechanism of the state council and promoted by the provincial health commission throughout the province.

This epidemic has given a new life to Nanjing Public Medical Center, Jiangsu province and Nanjing city invested 1.463 billion yuan to create an expansion project. This urgent expansion which was built in twelve days, gives double security to Nanjing’s epidemic prevention and treatment capacity. Making Nanjing Public Medical Center have an even more vital role in the treatment of covid-19 in China.

Upcoming Events

  • Design Smarter: Leveraging GIS, BIM, and Open Data for Better Site Selection & Collaboration

    Live Webinar

    Register for Free
  • Slate Reimagined: The Surprising Advantages of Slate Rainscreen Cladding

    Webinar

    Register Now
  • The State of Residential Design Today: Innovations and Insights from RADA-Winning Architects

    Webinar

    Register for Free
All Events