Nancy and Stephen Grand Family House

Project Details

Project Name
Nancy and Stephen Grand Family House
Location
San FranciscoCA
Project Scope
New Construction
Shared By
katie_gerfen
Project Status
Built
Certifications & Designations
LEED Platinum

Project Description

This article appeared in the November 2018 issue of ARCHITECT:

A housing complex for sick children and their families uses sustainable principles to create the healthiest environment possible.

The Nancy and Stephen Grand Family House in San Francisco’s Mission Bay neighborhood provides temporary housing for children receiving treatment at the University of California, San Francisco (UCSF) Benioff Children’s Hospital, as well as for their families. Designed by local firm Leddy Maytum Stacy Architects (LMSA), the five-story structure marries sustainability with its social mission by leveraging the mild climate of Northern California by combining 73,057 square feet of conditioned space with an additional 16,143 square feet of unconditioned area.

The location’s Walk Score of 87 makes it easy for patients to get almost anywhere, including the hospital that’s just two blocks away, principal Richard Stacy, FAIA, explains. But while the site allows users easy access to the city’s varied attractions, the designers realized the most important goal was to provide the healthiest and most comfortable environment for residents who are visiting the city under difficult circumstances.

While Family House has a history dating back to 1981, this was its first new construction project, and Stacy describes the initial task as “daunting” to the client. “They didn’t have a sustainable agenda at the outset,” he explains, although the architects recognized—based on the firm’s substantial body of work in affordable housing with not-for-profit clients—the opportunity for an environmentally sensitive solution. A steady, incremental approach to creating a sustainable building resulted in a LEED Platinum rating.

Stacy notes three specific factors that drove the effort: First, Northern California’s cooperative climate and state-mandated efficiency requirements provide a good baseline for success. Second, energy efficiency in a residential program is particularly attractive, as every dollar that a not-for-profit operator can save is a dollar it doesn’t have to raise in the future. And third, ill children and their often-traumatized families are particularly sensitive to the benefits of a health- and wellness-based solution, focusing on daylighting, healthy materials, views, and access to nature.

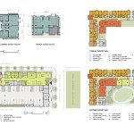
Previously, the Family House’s facilities were located in an old apartment building. “They wanted to maintain that shared sense of community,” Stacy says. Serving twice as many families as the organization’s previous home, the architects devised a scheme for the new structure that breaks the building down into a series of “neighborhoods” with 10 families in each sharing kitchen, living, and common areas. The C-shaped plan puts all guest rooms on the exterior of an extra wide corridor, providing city views for every room (the families are all from out-of-town, so this helps introduce them to San Francisco, Stacy says). Most of the living spaces are on the interior side of the corridor, where they overlook an interior courtyard that’s placed on the second floor and serves as a green roof over the parking structure. More than 95 percent of the interior spaces have direct views of the outdoors.

The ground floor—which borders Third Street—contains public spaces and administrative offices that further shield the first-floor parking garage from the public (and user’s) view. The entry is configured with welcoming reception desks and a grand stair meant to evoke a hotel, according to Stacy. The stair provides additional play area for the children and leads to the second-floor outdoor courtyard space.

“The [exterior] corner element is the one big splash,” Stacy says—noting that the organization’s executive director wanted an icon: The bold pattern cut into an aluminum screen is an abstraction of the Family House’s longtime logo—which depicts a house with two people joining hands, rendered in orange. Since it’s located on the southeast corner, the screen serves as a sunshading element as well as a “sign” for the building. The remainder of the façade is clad in fiber cement board that’s been crisply detailed with a sense of rhythm and a scale that belies the repetitive nature of the programmed residential spaces behind.

Economy and health are well served by simple, inexpensive electric heating and good ventilation with filtered air throughout—with air conditioning provided only in some common rooms. The success of this strategy seems to be confirmed by early results. “The building is using less energy that predicted,” LMSA associate Gwen Fuertes, AIA, says. “Probably because they’re using less air conditioning than expected.” A solar heating system provides 50 percent of the guests’ hot water supply.

The landscape design allows 90 percent of stormwater to be managed on-site, with “flow-through” planters that slow and filter stormwater before it enters the municipal stormwater system. A water-efficient landscape covers 22.5 percent of the site, including the internal courtyard and green roofs—an immense environmental improvement for land that had previously been an industrial brownfield built on fill from the 1906 San Francisco earthquake. The landscaped areas are predominantly—61.8 percent, to be precise—planted in climate-appropriate and native plantings that are an integral part of the designer’s strategy to provide a pleasing, sustainable environment for the occupants’ health and well-being.

Since its completion in spring 2016, the Nancy and Stephen Grand Family House has served approximately 8,000 occupants and post-occupancy surveys have validated the design’s intended effect on its users—providing a supportive environment during emotionally and economically challenging period in its occupants’ lives.

Nancy and Stephen Grand Fam… by on Scribd

Project Credits
Project: Nancy and Stephen Grand Family House, San Francisco Client: Family House Architect: Leddy Maytum Stacy Architects, San Francisco . Richard Stacy, FAIA (principal-in-charge); Gregg Novicoff, AIA (project manager); Jake Aftreth, Andrew Appleton, Gwen Fuertes, AIA, Claudia Merzario, Christine Van Wageneen, AIA (designers) Interior Designer: Marie Fisher Interior Design M/E/P Engineer: Engineering 350 Structural Engineer: OLMM Consulting Engineers Civil Engineer: Luk & Associates Geotechnical Engineer: Iris Environmental Construction Manager: Cambridge Group General Contractor: Nibbi Brothers General Contractors Landscape Architect: Cliff Lowe Associates Lighting Designer: Architectural Lighting Design Acoustic Consultant: Mei Wu Acoustics Signage Consultant: Keilani Tom Design Associates Waterproofing Consultant: Simpson Gumpertz & Heger Corrosion Consultant: JDH Corrosion Consultants Gas Mitigation: Terra-Petra Low Voltage: EDesignC LEED Rater: Bright Green Strategies Size: 16,143 square feet Cost: $29.2 million
Materials and Sources Acoustical System: Armstrong Adhesives/Coatings/Sealants: Prosoco; Gemini Coatings Appliances: UniMac; Frigidaire; Danby; GE Carpet: Interface Exterior Wall Systems: Georgia-Pacific Gypsum; James Hardie Building Products Flooring: Forbo; Mannington Commercial; Arizona Polymer Flooring Glass: Vitro Gypsum: Georgia-Pacific Gypsum Insulation: Owens Corning Plumbing/Water System: Pure Water Systems Roofing: Johns Manville Wayfinding: Arrow Sign Co. Windows/Doors: Allweather, Oldcastle BuildingEnvelope (windows); RACO (storefront); MechSystems (window screens); Republic (metal and wood doors); Special Lite (aluminum doors); Summit Woodworking (custom entry door)

Read expanded coverage of the winners of the 2018 AIA COTE Top Ten Awards.


From April 2018:

This project is a winner in the 2018 COTE Top Ten Green Projects Awards.

From the AIA:

Founded in 1981, Family House is a not-for-profit organization providing free temporary housing to families of seriously ill children receiving treatment at the University of California, San Francisco Benioff Children’s Hospital. The objectives for the new Family House in Mission Bay were to provide a comforting, healthy, and supportive environment for 80 families in a non-institutional, residential setting. Sustainable strategies focused on combining healthy and restorative living spaces for the families with resource and energy efficiencies critical to the on-going operations of the non-profit organization. The resulting design received a Platinum Level certification under the LEED for Homes program.

Metrics Snapshot:

Predicted consumed energy use intensity (EUI): 39.6 kBtu/sq ft/yr

Energy use intensity (EUI) refers to total energy use by the facility including energy purchased from utilities and provided by on-site renewable sources.

Predicted Net EUI: 34.1 kBtu/sq ft/yr

Predicted Net carbon emissions: 1.93 lb/sq ft/yr

Net carbon emissions refers to net purchased energy use (total energy use, less any energy generated on-site from renewable resources).

Predicted reduction from national average EUI for building type: 41 percent

Predicted lighting power density: 0.89 W/sq ft

Actual Consumed Energy Use Intensity (Site EUI): 30.6 kBtu/sq ft/yr. Solar hot water is not submetered, so only Actual Net Energy Use Intensity is available. “Net Carbon Emissions” – calculated using SF PUC’s rate calculator.

Actual net EUI: 30.6 kBtu/sq ft/yr

Actual net carbon emissions: 1.33 lb/sq ft/yr

Actual reduction from national average EUI for building type: 49

Community engagement: A partnership was formed with stakeholders to share in the decision-making process including development of alternatives and identification of the preferred solution.

Walk score: 87

Estimated occupants who commute via alternative transportation (biking, walking, mass transit): 60 percent

Estimated annual carbon emissions associated with the transportation of those coming to or returning from the building: 9.0 metric tons/yr (US Department of Transportation)

From the Architects:

Founded in 1981, Family House is a not-for-profit organization providing free temporary housing to families of seriously ill children receiving treatment at the University of California San Francisco Benioff Children’s Hospital. Located near the new hospital in Mission Bay, The Nancy and Stephen Grand Family House provides a comforting and supportive environment for 80 families in a non-institutional, residential setting.

The building is organized around 8 clusters of guest rooms and common areas on the building’s upper floors. Each cluster includes 10 guest rooms and shared living, dining, kitchen, play area and laundry rooms. The clusters surround a large landscaped multi-use courtyard at the second floor. The guest rooms have two sizes: a single room and a double suite. Each guest room has a projecting bay window, placed at alternating locations to create variety. A grand stair connects the reception area with the second-floor courtyard that serves as a focus of all the upper floors. Common areas for living, dining, cooking and play were placed at the corners of the courtyard, which also accesses terraces, a gym and a social room for teenagers.

Upcoming Events

  • Design Smarter: Leveraging GIS, BIM, and Open Data for Better Site Selection & Collaboration

    Live Webinar

    Register for Free
  • Slate Reimagined: The Surprising Advantages of Slate Rainscreen Cladding

    Webinar

    Register Now
  • The State of Residential Design Today: Innovations and Insights from RADA-Winning Architects

    Webinar

    Register for Free
All Events