Myers-Heckman Residence

Project Details

Project Name
Myers-Heckman Residence
Location
CincinnatiOH
Project Types
Single Family
Project Scope
Adaptive Reuse
Shared By
Madeleine D’Angelo
Project Status
Built
Year Completed
2021
Size
4,000 ft²

Project Description

This article first appeared in the September 2022 issue of ARCHITECT.

Since moving to Cincinnati in 2005, architect Sanyog Rathod, AIA, has become a serious booster for his adoptive hometown. “Cincinnati is a mecca for architects,” Rathod says. “On the one hand, it has over a dozen contemporary buildings by world-renowned architects—Gehry, Libeskind, Zaha. On the other hand, it has this enormous continuous collection of historic buildings.”

As the founder of Sol Design + Consulting, Rathod’s own inclinations are in the contemporary camp, as borne out by his office’s long track record acting as both designer and collaborator on a wide range of renovations, ground-up buildings, and interiors, all marked by a focus on energy efficiency. At the same time, Rathod has proven himself a devotee of the city’s unique architectural heritage—a commitment that helped propel one of Sol’s most energy-efficient projects to date, the Myers-Heckman Residence in the Over-the-Rhine neighborhood.

“In terms of urban density, the character of the neighborhood is very much comparable to places like Brooklyn or Chicago, with an especially high concentration of historic structures,” Rathod says. Originally a haven for Cincinnati’s German immigrant community, Over-the-Rhine grew and prospered from the early 19th century through the first half of the 20th; thereafter, it went into sharp decline, only to bounce back since the turn of the millennium as both longtime Cincinnatians and newcomers have rediscovered its charming mix of Queen Anne and Italianate-style buildings. After settling there himself, Rathod joined the local preservation nonprofit Over-the-Rhine Foundation to help protect the neighborhood’s architectural and cultural assets; it was there that he met Kristen Myers and her husband Chris Heckman, fellow foundation members who quickly became friends and started to speak to the architect, vaguely at first, about creating a new home for themselves in the area. “It took us about six years to actually do it,” Rathod says.

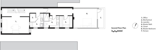
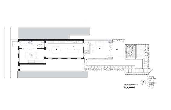
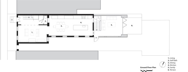
Completed in 2021, the four-story, 4,000-square-foot house stands as proof positive of how well ecological sensitivity and historical preservation can work in concert. The adaptive-reuse project began with an archetypical specimen of the Over-the-Rhine streetscape: an 1870 row house, fronted in brick and decorative details, with a narrow yard behind it. Hoping to increase the usable space, the architect and his clients decided to add an extension to the back as well as an upper-level addition—immediately requiring tough decisions about competing priorities.

“The design seeks to respect the historic architecture and allow contemporary intervention, while achieving near net-zero energy performance,” Rathod says. Topping the aluminum-clad roof with solar panels and choosing wood and high-efficiency windows for the rear addition, the Sol team used eco-friendly materials to articulate a distinct identity for the new portions of the house that still complements the original.

The sensitivity to context went further. “Soon after conceptualizing our design for the addition, we invited the Over-the-Rhine Foundation to critique our response for its historic appropriateness,” Rathod says. Soliciting input from other Over-the-Rhiners, Sol and company were encouraged to trim the width of the extension volume to better accord with the building’s original footprint. They took the same painstaking steps with the interior, which still boasted a substantial amount of period detail; determined to keep it, the designers removed the ornate moldings, panels, and mantels, applying new, high-performance insulation and then reapplying all the ornament precisely as it had been pre-renovation.

Living up to its dual role as architect and sustainability consultant, Sol succeeded in reducing household energy consumption by more than two-thirds, reusing over 60% of on-site water, and generating enough electricity to power the structure for more than six months. Through it all, the designers were aided by their clients’ shrewd choice of the site: The property sits alongside a trolley line and a short walk from a large farmer’s market, making the most of Over-the-Rhine’s traditional, pedestrian-friendly urbanism. The embodied-carbon savings from preserving the building further upped the project’s green bona fides, serving as further evidence of something that the Sol crew’s extensive research and data analysis has already persuaded them to be so. “It’s a common myth among developers and builders that historic renovations and sustainability are at loggerheads,” Rathod says. “Everything we’ve learned shows historic renovations are inherently sustainable.”

PROJECT CREDITS
Project: Myers-Heckman Residence, Cincinnati, Ohio
Client/Owner: Kristen Myers and Chris Heckman
Architects: Sol Design + Consulting, Cincinnati. Sanyog Rathod, AIA (Architect, President & CEO), Carl Sterner, AIA (Director of Design & Sustainability), Nate Steeber, Director of Certifications, Mandy Stephens, Project Coordinator
Interior Designer: kitchen design by NOLI Modern
Mechanical Engineer: HVAC design-build by Zimmer Heating & Cooling
Structural Engineer: Schaefer, Inc.
Construction Manager: GreenBau
General Contractor: GreenBau
Landscape Architect: Tepe Landscape & Design Group
Sol design + consulting also provided LEED certification services (in addition to architectural design)
Size: 4,000 square feet

MATERIALS AND SOURCES
Adhesives, Coatings and Sealants:
Appliances: Miele kitchen hood
Miele induction cooktop
Miele speed oven
Miele convection oven
Miele dishwasher
Bathroom Fixtures: Nebia shower (guest bath)
Master bath & kids bath: Brizo Odin shower, faucets, towel hook, towel bar
Kohler Highline dual flush toilets
Cabinets: Maistri kitchen cabinets, provided by NOLI Modern
Exterior Wall Systems: Huber Zip sheathing (new construction portion only)
Ipe cladding
Standing seam metal by Metal Sales
Fabrics and Finishes: 98% of existing trim, baseboards, and wainscoting was removed, re-finished, and re-installed over new rigid insulation
Flooring: Original hardwood flooring was refinished for 67% of floor area
New hardwood flooring was locally harvested walnut by Schlabach Woodworks
HVAC: Mestek Space Pak – air handling units
ClimateMaster Tranquility 27 – ground source heat pump
Panasonic Intelli-Balance – Energy Recovery Ventilator (ERV)
Insulation: InSoFast (rigid insulation on existing walls)
Photovoltaics or other Renewables: 9.9kW solar array by Icon Solar
Roofing: Standing seam metal by Metal Sales
Windows and Doors: Pella Architect Reserve windows & doors, NanaWall, Quaker Windows (vertical storefront)

Upcoming Events

  • Build-to-Rent Conference

    JW Marriott Phoenix Desert Ridge

    Register Now
  • Reimagining Sense of Place: Materiality, Spatial Form, and Connections to Nature

    Webinar

    Register for Free
  • Homes that Last: How Architects Are Designing a Resilient Future

    Webinar

    Register Now
All Events