Museum of the Bible

Project Details

Project Name
Museum of the Bible
Location
WashingtonDC
Architect
SmithGroup
Project Types
Cultural
Shared By
Sara Johnson
Project Status
Built
Year Completed
2017
Size
430,000 ft²
Team
Lead Designer: David Greenbaum, FAIA
Exhibit Design Coordination and Project Management: Sarah Ghorbanian
Exterior Architecture: Marcus Wilkes, AIA
Interior Architecture: Bill Jones, AIA
Lead Engineer: Don Posson

Project Description

FROM THE ARCHITECTS:

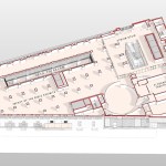
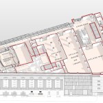
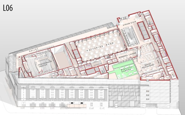
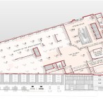
SmithGroupJJR is the lead architect and engineer of its latest landmark building – the Museum of the Bible, in Washington, D.C. The SmithGroupJJR team oversaw the renovation of the historic 1922 building including its exterior design, engineering, interior architecture, and lighting design.

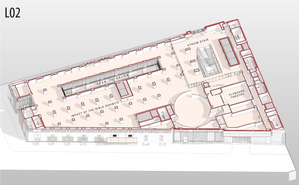
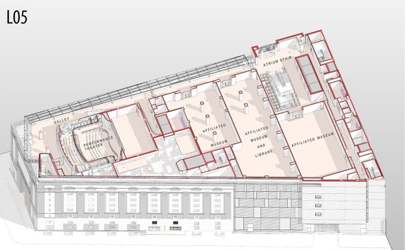
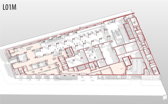
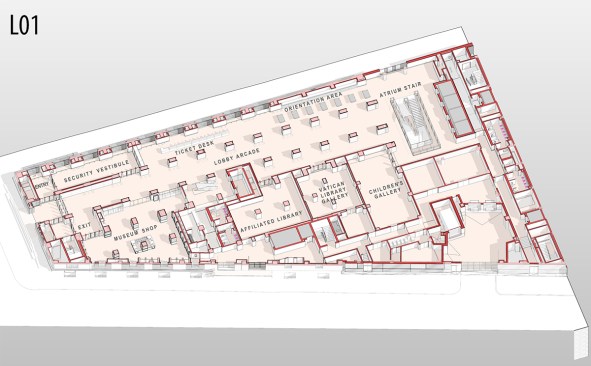
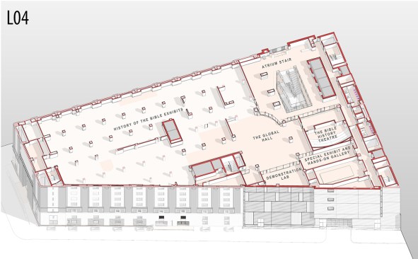
Dedicated to one of the world’s oldest texts, the 8-level, 430,000-square-foot new museum in Southwest Washington, D.C. is resolutely modern, incorporating striking architectural forms and cutting-edge technologies. The finished project is a built equivalent of a manuscript that bears traces of several versions of text added and erased over time.

The building avoids the easy, literal symbolism that is often associated with biblical representation, in favor of rich but subtle allusions. The result is a work of architecture that is simultaneously timeless and of-the-moment, both universal and place-specific. And it reflects a concerted effort to allow for, and even encourage, a multiplicity of views, interpretations, and experiences.

When the Museum of the Bible opens on November 17, 2017, its strategic location at the cultural axis along 4th Street will connect the National Mall and major cultural landmarks to Southwest Washington, further invigorating the urban revival of a fascinating, historic and rapidly transforming part of the city.

Upcoming Events

  • Design Smarter: Leveraging GIS, BIM, and Open Data for Better Site Selection & Collaboration

    Live Webinar

    Register for Free
  • Slate Reimagined: The Surprising Advantages of Slate Rainscreen Cladding

    Webinar

    Register Now
  • The State of Residential Design Today: Innovations and Insights from RADA-Winning Architects

    Webinar

    Register for Free
All Events