Museum of the American Revolution

Project Details

Project Name
Museum of the American Revolution
Location
PhiladelphiaPA
Project Types
Cultural
Shared By
Sara Johnson
Project Status
Built
Year Completed
2017
Size
118,500 ft²

Project Description

The Museum of the American Revolution broke ground on Oct. 9, 2014, and opened on April 19, 2017.

FROM THE ARCHITECTS:

The Museum of the American Revolution, anchoring the eastern end of Independence National Historical Park, is designed to introduce visitors to the American Revolution with an extraordinary collection of historical artifacts and contemporary interpretations demonstrating the continued worldwide importance of the Revolution.

Set amidst buildings of national historical and architectural significance—facing the First Bank of the United States (Samuel Blodgett, 1795), near William Strickland’s Merchant’s Exchange (1834) and the U.S. Custom House (Ritter & Shay, 1934)—the Museum evokes the restrained Classicism that heralded the birth of the Republic. The Museum addresses the corner of Chestnut and Third Streets with a broad plaza and an inviting, bronze-painted domed entrance pavilion set into a stone tympanum. A museum shop and café that opens to the sidewalk enliven Third Street; above, the wall that conceals the galleries is articulated with recessed brick arches housing stone apsidal niches, accented with stone at the spring points and keystones. On Chestnut Street, a bronze-painted bay window flanked by two bas-relief panels depicting John Trumbull’s painting Declaration of Independence offers passersby a view into the entrance rotunda.

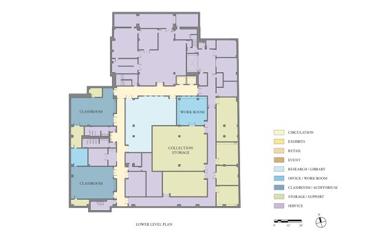
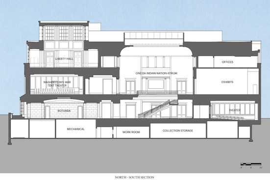
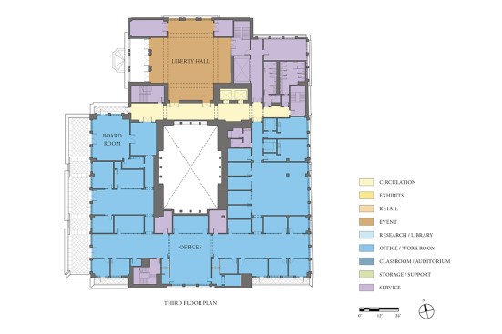
Our design organizes the Museum around a skylit central interior atrium. The ground floor will accommodate a multi-use theater and a changing exhibition gallery. Within the atrium a grand elliptical stair will take visitors up to 18,000 square feet of galleries and a theater dedicated to the exhibition of George Washington’s war tent, one of the Museum’s most dramatic holdings. A clerestory monitor rendered in Alabama limestone accentuates the Museum’s verticality and floods Liberty Hall, a third-floor event space intended for conferences, symposia, and social events, with light. Two broad terraces overlooking the First Bank command views west to Independence Hall and the modern-day Philadelphia skyline. The building provides state-of-the-art storage and conservation spaces and follows best practices for sustainable museum design to target LEED Gold certification.

Upcoming Events

  • Future Place

    Irving, TX

    Register Now
  • Archtober Festival: Shared Spaces

    New York City, NY

    Register Now
  • Snag early-bird pricing to Multifamily Executive Conference

    Newport Beach, CA

    Register Now
All Events