Museum Afghanista

Project Details

Project Name
Museum Afghanista
Location
KabulAFGHANISTAN
Project Types
Shared By
TheeAeArchitect
Project Status
Concept Proposal

Project Description

Design of the new museum is very much challenge. The most difficult one is about that there is almost nothing to start through the context of the current environment. Ruined desert is the major element. TheeAe’s Design team has to find a way to start to bring this vague situation turning into a landmark.
The heritage and its cultural asset from the past was the key to relate the existing ruined nature. We have believed that the existing ruins, yet it provides the future of Afghanistan are to create the spaces that convey characteristics of architecture of Afghanistan.
From the outside facade materials, it is simply designed with each patterned wood frame in individual exposed concrete box unit. The exposed concrete was to relate the existing environment, as well as the patterned frame mimics the historical elements of Afghanistan. The frame itself is to bring the lights to the interior space as much as its space is to be found from Afghanistan’s historical building.
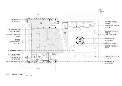
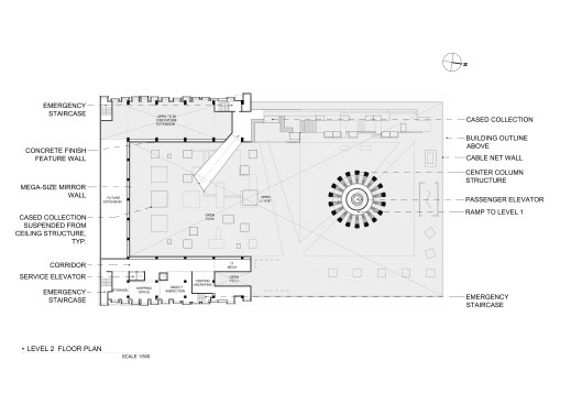
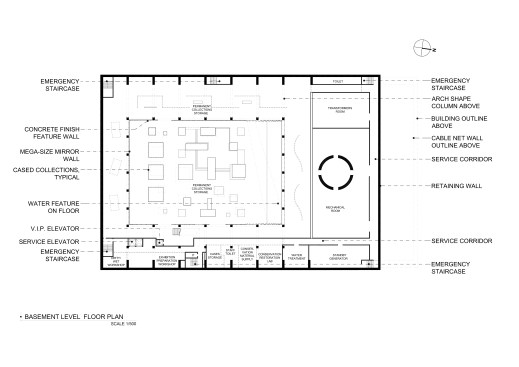
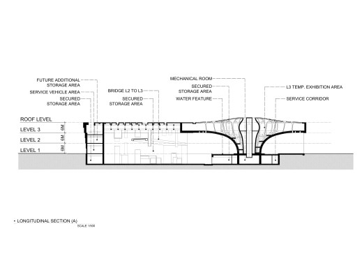
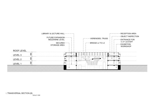
The major public space inside is much opened into the nature. The supporting mega-column is the shape of arch that transformed to express the richness of culture. Thus, it provides unique space to give a feeling of rest to public and non-public, VIP members, who visits the museum. The collections under the mega-column are well arranged in a proper distance and they are cased in glass boxes not only for the security, but also for the protection of the moisture from the artificial pond inside.
The area of the collections and storage space that is secured are opened from basement area to Level 3 ceiling space which is around 22m height. Plus, the south interior wall is designed to install mirror entirely to give the space even looking more opened than what it is. So that, the visitors will experience as if they are in the valley of mountain in Afghanistan.
The structural element for this museum is very much challenge. The east and west boxed walls are designed to work as Vierendeel truss system to support the extensively prolonged cantilever to the main entrance collection area. This cantilever is supported by this truss and the mega-column in the center of the north area. The additional support for the glass wall is supported by the tree-like truss at the north open area.
The space that creates more interesting is the level 3 public collection area. The natural lights penetrates through the skylight above. It still continues to pass down to the main collection space. Even the public will enjoy the beauty of mega-column in a different view from the level 1.

Upcoming Events

  • Design Smarter: Leveraging GIS, BIM, and Open Data for Better Site Selection & Collaboration

    Live Webinar

    Register for Free
  • Slate Reimagined: The Surprising Advantages of Slate Rainscreen Cladding

    Webinar

    Register Now
  • The State of Residential Design Today: Innovations and Insights from RADA-Winning Architects

    Webinar

    Register for Free
All Events