Musée d’arts de Nantes

Project Details

Project Name
Musée d’arts de Nantes
Location
NantesFrance
Architect
Stanton Williams
Shared By
Ashleigh Popera
Project Status
Built
Year Completed
2017
Size
182,988 ft²

Project Description

FROM THE ARCHITECTS:

In 2009, Stanton Williams won an international competition for the transformation and extension of the Musée d'arts in Nantes and the design for the interior of the buildings that make up the new museum. Stanton Williams was also commissioned to design the landscaping for the streets and public squares adjacent to the museum complex. In collaboration with graphic design studio Cartlidge Levine, the team also designed the graphic identity and signage for the museum. This single design process, from typography to museum layout and from architecture to landscaping, brought a unique sense of architectural coherence to the project.

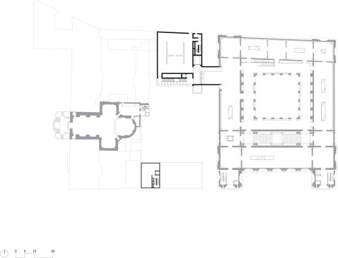
A MUSEUM IN THE CITY

Located near the Château of the Dukes of Brittany, the Cathedral and the Jardin des Plantes, the Musée des Beaux-Arts and the Oratory Chapel combine together into an outstanding cultural hub.

The museum is located in a residential area and despite the architectural quality of the museum buildings, it stands apart from the axis formed by the cathedral, the castle, the Lieu Unique cultural centre, and the conference centre.

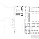
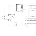
The new Musée d'arts in Nantes aims to transform the image of the district by renovating and transforming the former Palais des Beaux-Arts and adding a new extension housing the contemporary art collection, a new documentation and graphic arts centre, a sculpture court, and a new link to the seventeenth-century Oratory Chapel, where contemporary art is also exhibited.

The transformation of this museum complex involved the creation of a coherent architectural and cultural itinerary. This was made possible by the new extension, which connects the historic buildings that form the new Musée d'arts in Nantes . In architectural terms, the intention has been to open up the museum to the city, making it more accessible and democratic.

TRANSFORMATION AND CONTINUITY

“An odd, windowless monument, a sort of pedestal with its chariot and four horses removed” -Julien Gracq, La Forme d’une ville, José Corti, 1985.

This remark by the author Julien Gracq, who was born in Nantes, effectively expresses the monumental and introverted nature of the Palais des Beaux-Arts. At the design stage for the new museum, we strove to transform the dilapidated and elitist Palais into a vibrant, democratic and welcoming contemporary institution, a museum open to the city and its inhabitants that both complements and respects the existing architecture, juxtaposing old and new just as the museum’s collections do. The new extension completes and connects the new museum complex. To ensure the museum’s openness to the exterior, we began by replacing the existing gate in front of the main façade and the narrow steps leading up to the entrance with a new courtyard that forms a public area continuing on from the Rue Clemenceau, which will eventually [MB7] be pedestrianized. Broad steps directly connect the main museum entrance hall to the street, and provide visitors and passers-by with a place to meet and relax on the Rue Clemenceau. The upper part of the courtyard can be used to display sculptures or art installations or as a summer terrace for the museum café, thus generating activities that enhance the presence of the museum in its urban setting.

On either side of the new courtyard are two large plinths topped with glass “boxes”, respectively housing a lift that facilitates access to the museum and a space for contemporary art installations.

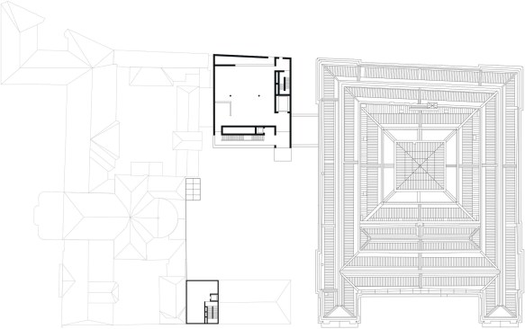
The recent regeneration of the Rue Clemenceau completes the transformation of the museum forecourt, creating a public area below it where cultural events can be held. The Cours Jules-Dupré, the avenue that runs between the Palais des Beaux-Arts and the new extension called The Cube, has been made accessible to the public; it opens up a street-side view of the new extension with its translucent marble façade and the large window and connecting gallery above the avenue.

Through the transparent façade of the ground floor lobby in the new graphic arts building on the Rue Clemenceau, pedestrians can see the terraces of the new sculpture garden and the new extension.

Large openings in the façade of the “Cube” also afford views of the collections inside, reinforcing the strategy of bringing the public closer to the museum and its collections.

A CULTURAL AND ARCHITECTURAL ITINERARY

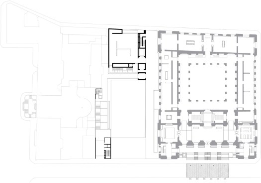
The intention was to create a coherent cultural and architectural itinerary by reorganizing the existing spaces in the Palais, constructing new public areas at basement level, and creating galleries and circulation areas in the new extension. This allowed us to connect the Palais to the Oratory Chapel and to offer a variety of itineraries that allow visitors to appreciate the rich art collections and experience a number of different architectural spaces. The architectural design for the gallery spaces is intended to highlight the artworks while providing the best possible conditions for their conservation. The design both serves the artworks and interacts with them rather than dominating them with overpowering architecture. The new extension has been designed from the inside out[MB8] . Its expressive power arises from the careful handling of the gallery spaces and circulation areas, as well as the way natural and artificial light is used. The connecting walkway to the Palais spanning the Cours Jules-Dupré has been deliberately treated as an introverted gallery space so as not to interrupt the visitor experience: a single side opening lets visitors know that they are leaving the Palais and entering the Cube in the direction of the Chapel.

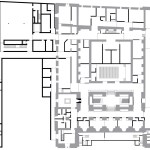
Excavating the entire basement level of the Palais, a true feat of engineering, has opened up new public areas such as the educational workshops, the auditorium and an exhibition room called the “White Room”, as well as storerooms and restoration workshops. The thick stone walls of the foundations are shown off to their best advantage, supported by large concrete porticoes and plinths echoing the transformations that have taken place here below ground. High-quality materials such as oak and bronze have also been used, further adding to the visitor’s sensory experience.

FROM THE INSIDE OUT

The set of buildings that make up the museum include three kinds of spaces: transformed spaces (in the Palais), new spaces (in the Cube) and appropriated spaces (in the Oratory Chapel).

The gallery spaces in the Palais have been modified by adding inner rooms and display walls that punctuate the visit and energise the long, linear, repetitive sequence of the galleries, creating more intimate spaces inside the larger areas without affecting their integrity. The ground floor gallery windows looking out onto the street have been reopened; this helps people to get their bearings and punctuates the visitor itinerary.

The gallery spaces and circulation areas in the Cube have been designed from the inside out. Large flexible spaces are interconnected by wide gaps with big windows looking out to the exterior; these make it easier for visitors to get their bearings as well as making the artworks visible from the street. Emerging from the basement of the sculpture court, a glass tower containing a lift forms a link to the Oratory Chapel via the sacristy.

No special architectural work has been carried out in the large Oratory Chapel; artists can appropriate and transform this space via temporary installations.

NATURAL AND ARTIFICIAL LIGHT

In agreement with the museum team, we decided to retain and optimize the use of natural light for the main galleries and the patio of the Palais. We wanted to capture that uniquely gentle Atlantic light that is so characteristic of Nantes. In the Palais, daylight comes in through the existing skylights; it was then muted by a second set of glass panels set into the gallery ceilings. This technology—a nineteenth-century innovation—posed several problems: as soon as the museum opened it was the source of many leaks and, more significantly, allowed too much light into the south-facing galleries and too little into the north-facing spaces. It also caused sound to echo down the long suite of galleries—not to mention heat loss, which made climate control for the works on display hard to manage.

We retained the existing metal framework but replaced the existing glazed panels with a layered system of glass, taut fabric and adjustable blinds. 21st-century technology thus supports its 19th-century counterpart, and the unique character of the main galleries and the patio of the Palais has been preserved.

This transformation allows us to optimize and control the natural light while retaining the effect of “passing clouds”. This means we accept temporary light variations that are a charming feature of the galleries and, more importantly, recall the lighting conditions in the artists’ studios where the works were painted. High-performance artificial lighting designed especially for the museum complements the natural light, especially in the ground floor galleries, which receive relatively little daylight. The old windowless service elevator has been replaced by a translucent glass lift; light shines down the shaft from the roof to the basement.

THE CUBE: CONNECTING PAST AND PRESENT

The new extension is connected to the Palais by a spacious gallery spanning the Cours Dupré. It boasts contemporary galleries on four floors, which are linked by wide gaps that allow natural light to enter the building and connect the galleries in visual terms. A staircase on the south side provides a counterpoint to the existing monumental staircase in the Palais.

The new extension is intended to link the past and the present, creating a dialogue between the Palais and the other buildings in the museum complex and providing a sense of urban continuity. The architectural vocabulary of the new building references the stone used to build the Palais des Beaux-Arts, the Oratory Chapel and the other buildings on the museum campus. The white materials used in their construction act as a visual tie-in, especially local limestone (tuffeau nantais) used for the rear wall of the Oratory Chapel and the façade of the Cathedral, and similar-looking stone for the Palais and neighbouring buildings.

This monolithic cube looks as though it might have been sculpted from a single block. Its outside appearance echoes the white galleries inside, and there is a strong sense of continuity in terms of the materials used inside and out. The north façade on Rue Gambetta is plain, referencing the windowless façade of the Palais des Beaux-Arts. Despite its large streetside windows, the new extension is monolithic—an effect underscored by the use of stone: for example marble has been used for the lower part of the façade on Rue Gambetta and the entire east façade on Cours Jules-Dupré, as well as for the connecting gallery.

The upper section of the façades is a continuous stone surface, further reinforcing the monolithic feel of the building. Here, we have opted for stone-effect render that looks similar to local tuffeau. This is a nod to the kind of stone buildings found all along the Loire Valley (including the châteaux) and the tuffeau quarries hewn from the living rock, sometimes later converted into troglodyte dwellings. This idea of sculpting blocks of stone is even echoed in the “chiselled” typography of the museum signage.

The south façade of the Cube, with the steps and walkways running along it, consists of a suspended curtain wall made of marble and translucent laminated glass that filters the strong southern sunlight and reveals the colored veins of the stone when seen from the interior circulation areas. In the evening, the artificial light inside the building similarly highlights the rich textures and colors of the marble façade when viewed from the exterior. These abstract patterns of veins are somewhat reminiscent of the skies in 19th– and 20th– century paintings by artists such as Turner and Monet, and are also a nod to the ornamentation of the Palais des Beaux-Arts.

ENVIRONMENT STRATEGY

After working with our environmental strategy consultants, we applied a passive strategy that takes into account the physical properties of the existing outer walls of the Palais while improving the thermal insulation of the roofs and outer walls, doubling up the interior walls of the galleries when they are in contact with the exterior. In collaboration with the French Museums Authority at the Louvre, we opted to extend the range of the climate control for the artworks, avoiding abrupt variations in temperature and moisture. This strategy both saves energy and considerably reduces the size of the climate control machinery in the building. We favoured the use of natural light in the upper floor galleries of the Palais, while LEDs for artificial lighting also allowed us to make significant energy savings. We have surpassed the environmental quality standards specified in the brief for the museum.

DESIGN OF EXHIBITION SPACES

We also designed the interior layout of all the galleries, working in collaboration with the museum teams.

For the Palais, we decided to transform the large galleries originally designed for exhibiting large-format works and holding Salon-type art shows. To break the monotony of the long, linear sequence of galleries, we opted to use large display partitions and box-like inner rooms, which subdivide the space while preserving the overall spatial integrity of the galleries. The use of diagonals and openings in the inner rooms provides oblique views and frames the artworks in interesting ways; the large size of the rooms also makes it possible to present small-scale works next to large-format pieces, as well as sculptures of different sizes. The layout of the Cube was designed to be flexible: we looked at different configurations for the display walls to respond to the varied requirements of contemporary art. This careful work on the spatial qualities of the museum, the materials used and the way daylight is used is reflected in the design of the signage: large anodized aluminum panels reflect the light and the color of the stone, while projecting a patch of vivid color onto the wall from their hidden rear side.

Editor's note: This description has been lightly edited for clarity.

Upcoming Events

  • Design Smarter: Leveraging GIS, BIM, and Open Data for Better Site Selection & Collaboration

    Live Webinar

    Register for Free
  • Slate Reimagined: The Surprising Advantages of Slate Rainscreen Cladding

    Webinar

    Register Now
  • The State of Residential Design Today: Innovations and Insights from RADA-Winning Architects

    Webinar

    Register for Free
All Events