Mundo Verde Bilingual Public Charter School John F. Cook Campus

Project Details

Project Name
Mundo Verde Bilingual Public Charter School John F. Cook Campus
Location
Washington, D.C.
Project Types
Education
Shared By
katie_gerfen
Project Status
Built
Size
4,376 ft²

Project Description

This article appeared in the November 2018 issue of ARCHITECT:

The design for the renovation and addition to a public elementary school brings green space—and food production—back to the city.

In 2013, when Studio 27 Architecture was interviewed for the job of designing Mundo Verde Bilingual Public Charter School John F. Cook Campus in Washington, D.C., principal Todd Ray, FAIA, was energized by the question, “How can this project teach our students to be global stewards of our environment?” A follow-up question, however, caught him by surprise: “How can we make a school that becomes more sustainable each year?” Since buildings generally decay over time, he says, “it was a paradigm shift to imagine it improving over time.”

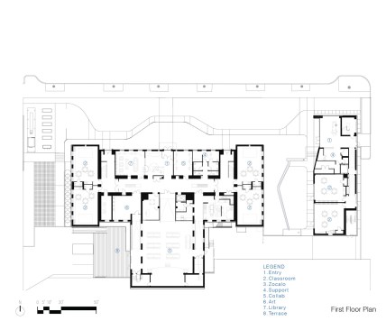
The resulting $15 million project encompassed the rehabilitation and renovation of a 1925 brick public school building, Cook Elementary, which Studio 27 found abandoned and in a state of “amazing disrepair,” Ray says, as well as the construction of a new three-story building and the greening of the property to include an edible garden where students cultivate crops such as tomatoes, basil, and broccoli—and compost the scraps they don’t eat. Today, the campus accommodates almost 600 students from pre-K through fifth grade. As the award jury noted, “The building and the curriculum integrate sustainability into the occupants’ daily lives. … This is a great example of high performance achieved within constrained costs.”

Overhauling the pre-existing, 36,148-square-foot elementary school involved installing all new mechanical systems. Studio 27 took inspiration from the energy efficiency of the building’s original ventilation system, which pulled fresh air through the basement and a series of vertical shafts. The new air-cooled variable refrigerant flow (VRF) system allows for localized climate control and energy savings from not having to push conditioned air around the building. And the old ventilation shafts now serve as one-on-one tutoring niches. The heart of the school is the refurbished, double-height multipurpose space called the “Zócalo” (after the main public square of Mexico City), which combines the functions of auditorium and gymnasium. Positioned just inside the school’s main entrance, it boasts restored round-arched windows, disc-like LED pendants, and better connections to the outdoors thanwere offered by the existing space.

The newly constructed, 10,963-square-foot annex, home of the kindergarten and pre-K programs, also has a Spanish name: la casita, or the small house. It fronts the street, at once addressing the neighborhood and creating a garden court in the space between the new and old structures. “We kept the fences low and the gates wide,” Ray says. The building is certified LEED Platinum and achieves solid performance metrics, but its most popular feature may be the elevated deck overlooking the campus, which the elementary school students are known to relish.

Working closely with school administrators, Studio 27 created a sustainability master plan to determine “what could and could not be afforded immediately,” Ray says. The architecture supports the educators’ ambition to further reduce the school’s carbon footprint year over year, for example, by one day installing solar and wind energy systems. Students learn all about this vision in a fourth-grade learning unit focusing on energy, which introduces them to photovoltaic technology and gives them a chance to speak with neighbors about the benefits of going solar.

Water conservation was also important to the school’s mission. So Studio 27 designed a rainwater harvesting system to capture runoff from the roofs and store it in a 25,000-gallon cistern beneath the main garden court, providing enough water to irrigate the gardens and flush the toilets. A central water plant in the basement of the old building pumps both potable and non-potable water throughout the campus.

“Our school needed to be beautiful and sustainable; it also needed to codify and support our approach to learning—active, challenging, meaningful, public, and collaborative,” Kristin Scotchmer, co-founder and executive director of Mundo Verde, says. “Mundo Verde’s impact will be greener each year and the children walking out of our building will extend that greener footprint beyond our immediate community.”

From the buildings’ optimized mechanical systems and daylighting to the pair of hens that live in the garden and furnish eggs for student meals, this project combines architecture with landscape, health, and curriculum design. As the COTE jury noted, “Mundo Verde and its project team have achieved something that will have a positive impact on its students and the broader community. … The sustainable practices, in particular, went well beyond the buildings themselves.”

Mundo Verde Bilingual Publi… by on Scribd

Project Credits
Project: Mundo Verde Bilingual Public Charter School John F. Cook Campus, Washington, D.C.
Client: Mundo Verde Bilingual Public Charter School . Kristin Scotchmer (lead founder and executive director)
Architect: Studio 27 Architecture, Washington, D.C. . Todd Ray, AIA (principal-in-charge); John K. Burke, AIA (principal); Craig Cooke (project manager); Hans Kuhn (project designer); Soledad Pellegrini (project architect)
M/E/P Engineer: CS Consulting Engineers
Structural Engineer: Ehlert Bryan
Civil Engineer: Christopher Consultants
Geotechnical Engineer: CTI Consulting
Construction Manager: TenSquare
General Contractor: Forrester Construction
Landscape Architects: Carvalho + Good; O’Shea Wilson Siteworks
Lighting Designer: One Source Associates
Commissioning Agent: Interface Engineering
Food Service Consultant: Next Step Design
Acoustical Consultant: Hush Acoustics
Size: 47,229 gross square feet
Cost: $13 million

Read expanded coverage of the winners of the 2018 AIA COTE Top Ten Awards.


From April, 2018:

This project is a winner in the 2018 COTE Top Ten Green Projects Awards.

From the AIA:

Mundo Verde is a bilingual, sustainability-focused public charter school, and as such, its campus is a living framework for the curriculum. Through hands-on, real-world thematic units called expeditions, students explore complex sustainability issues. Material, system and resource efficiencies are measured and monitored; stormwater is captured and repurposed; indigenous plantings support migratory insects and birds; and nutrition and wellness are realized via a garden-to-plate-to-compost food education initiative. The school actively provides high-quality education to students PK3- 5th grade with families from all neighborhoods in the District of Columbia including some of the most under-served neighborhoods. The Mundo Verde project revitalized a derelict urban school site as a demonstration for green, sustainable practices, operations, and education. Goal: inspire each child to be a proactive leader in environmental change.

Metrics Snapshot:

Predicted consumed energy use intensity (EUI): 61 kBtu/sq ft/yr

Energy use intensity (EUI) refers to total energy use by the facility including energy purchased from utilities and provided by on-site renewable sources.

Predicted Net EUI: 61 kBtu/sq ft/yr

Predicted Net carbon emissions: 6 lb/sq ft/yr

Net carbon emissions refers to net purchased energy use (total energy use, less any energy generated on-site from renewable resources).

Predicted reduction from national average EUI for building type: 58.8 percent

Predicted lighting power density: 0.76 W/sq ft

Predicted annual consumption of potable water for all uses, including process water: 132 gal/year/occupant (0.66 gal/day/occupant)

Is potable water used for irrigation? No

Community engagement: Stakeholders were involved throughout most of the process.

Walk score: 93


This project is a winner in the 2016 AIA CAE Education Facility Design Awards.

FROM THE AIA:

Mundo Verde is a bilingual, sustainability-focused public charter school located in the District of Columbia. The school’s curriculum is based on expeditionary learning, where students learn through the critical exploration of complex issues.

Awarded a shuttered 1920s-era school building and site by the District in 2013, Mundo Verde had a direct question for the design team: “How can this redevelopment and addition project teach our students to be global stewards?” From the renovation of the existing building to the precise detailing and material efficiency of the Pre-K annex, the entire campus is designed to foster learning through environmental living.

Upcoming Events

  • Design Smarter: Leveraging GIS, BIM, and Open Data for Better Site Selection & Collaboration

    Live Webinar

    Register for Free
  • Slate Reimagined: The Surprising Advantages of Slate Rainscreen Cladding

    Webinar

    Register Now
  • The State of Residential Design Today: Innovations and Insights from RADA-Winning Architects

    Webinar

    Register for Free
All Events